Ficha Técnica y Memoria del Proyecto
Jefe de diseño: Daniel Bermúdez
Equipo de diseño: Catalina Venegas, Stan Van der Maas, Juan Camilo Brito, Mariana Orozco, David Caballero, David Gómez, David Barbosa, Juan Fernando Martínez.
Cálculo Estructural: CNI, Nicolás Parra
Estudio de Tráfico: T&T, Deisy Guzmán.
Concepto patrimonial: Lina Beltrán SAS
Renders: Cinco Arquitectos.
Pese a la tremenda complejidad del programa, magnificada por las difíciles condiciones de tamaño y vecindad del predio, el proyecto pretende principalmente presentar una propuesta en la que los aspectos funcionales, técnicos y teatrales estén resueltos de la mejor manera. Es arquitectura que presenta soluciones verdaderamente útiles. Con el fin de minimizar el impacto negativo que podría producirse por la aparición de un gran edificio en tan frágil contexto, el proyecto pretende por un lado solucionar el empate de los parámetros de 2 formas diferentes y por otro aprovechar la coyuntura para reforzar la vocación peatonal de la calle 11 y darle importancia a la parte trasera de la catedral de Bogotá. Se proponen también empates estrictos contra los volúmenes de los vecinos tanto en las alturas como en el tamaño de los patios. Es arquitectura que contribuye a la adecuada conformación de la ciudad.
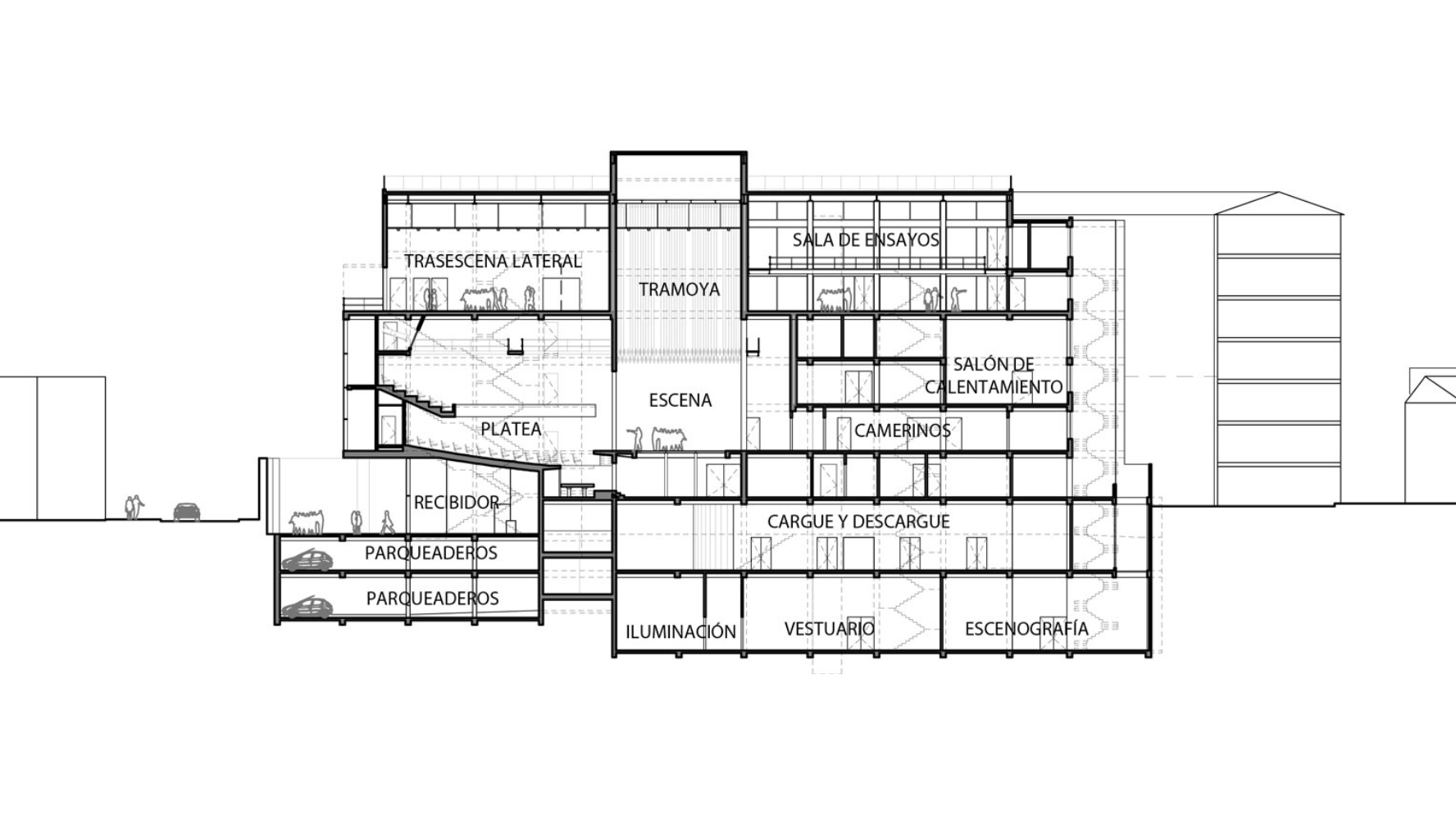
Con la convicción de que la arquitectura también surge de la comprensión de los sistemas técnicos que acompañan los sistemas arquitectónicos y de su adecuada integración, el proyecto que presentamos involucra propuestas de expertos en cada materia. Es arquitectura que nace simultáneamente con los sistemas técnicos.
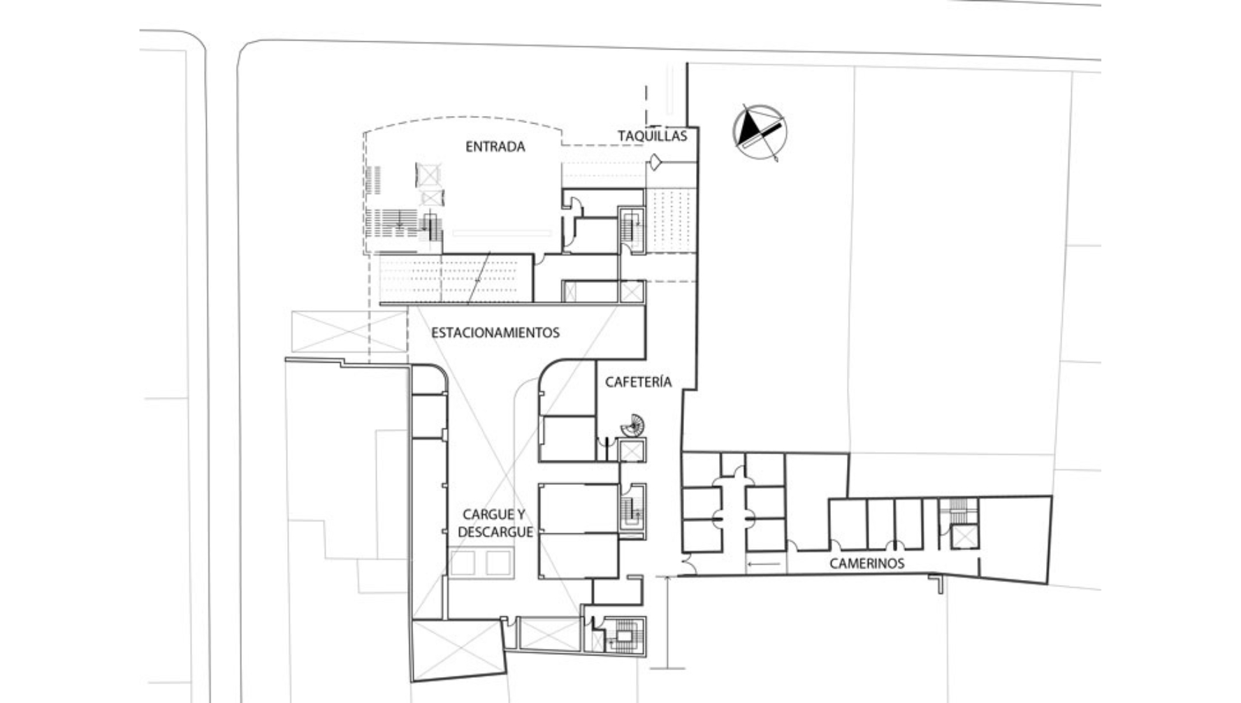
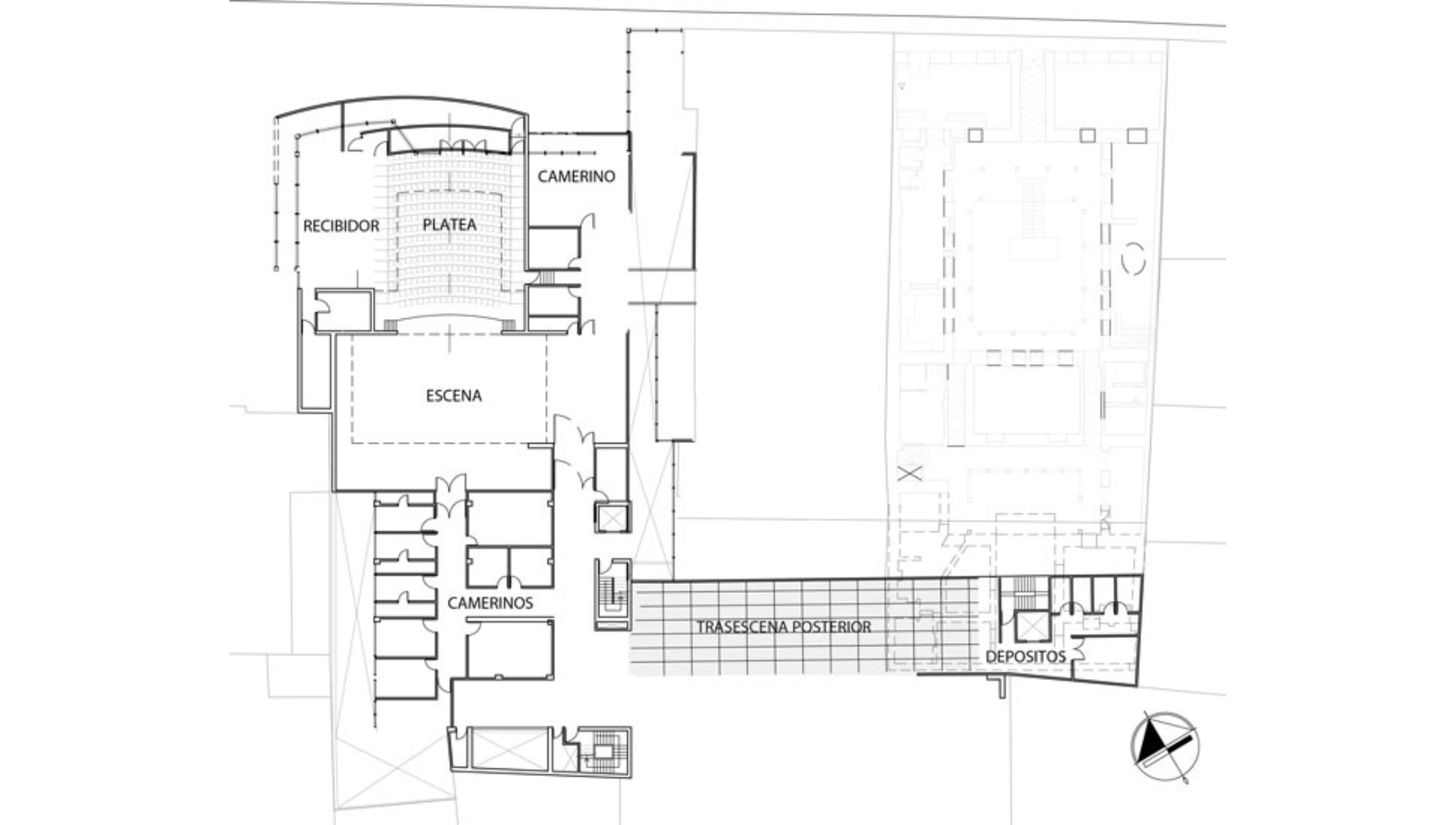
Por su localización el proyecto debe resolver el empate de dos condiciones normativas y urbanísticas que definen formas y proporciones de espacio público diferentes. Por la carrera 6ª debe empatar con edificios de gran altura (7 pisos o más, andenes amplios y voladizos a 4 m de altura y de 3 m de ancho). En cambio, por la calle 11 debe empatar con la paramentación colonial, con construcciones de 2 pisos, 6 o 7 m de altura, andenes y vías estrechas y con aleros de 1 a 1.2 m. En la carrera 6ª, el sistema de aleros propuesto conecta las áreas de recibo exterior con los voladizos del edificio de la Universidad Autónoma y del edificio Stella, consolidando el perfil urbano de la ciudad de la mitad del siglo XX y se abre la esquina de la calle 11 con carrera 6 con el fin de fortalecer y consolidar las fachadas de la Catedral, las viviendas coloniales y el centro cultural Gabriel García Márquez. Sobre la calle 11, el proyecto plantea una continuidad al paramento constituida por un plano de fachada que no supera la altura del alero de las construcciones antiguas y proyecta una abstracción de los vanos de las fachadas coloniales. Esta condición fortalece y consolida la perspectiva de la fachada urbana sobre la calle 11. Este muro perforado garantiza la reconformación de los paramentos de la calle y a su vez conformará un espacio de recibo exterior que aísla el edificio de mayor altura, necesario para incluir el programa solicitado. Se puede decir que esta paramentación opera como una celosía que sin desconformar definitivamente la calle que permitirá percibir el edificio contemporáneo que está detrás y el pasaje hacia el centro de manzana.
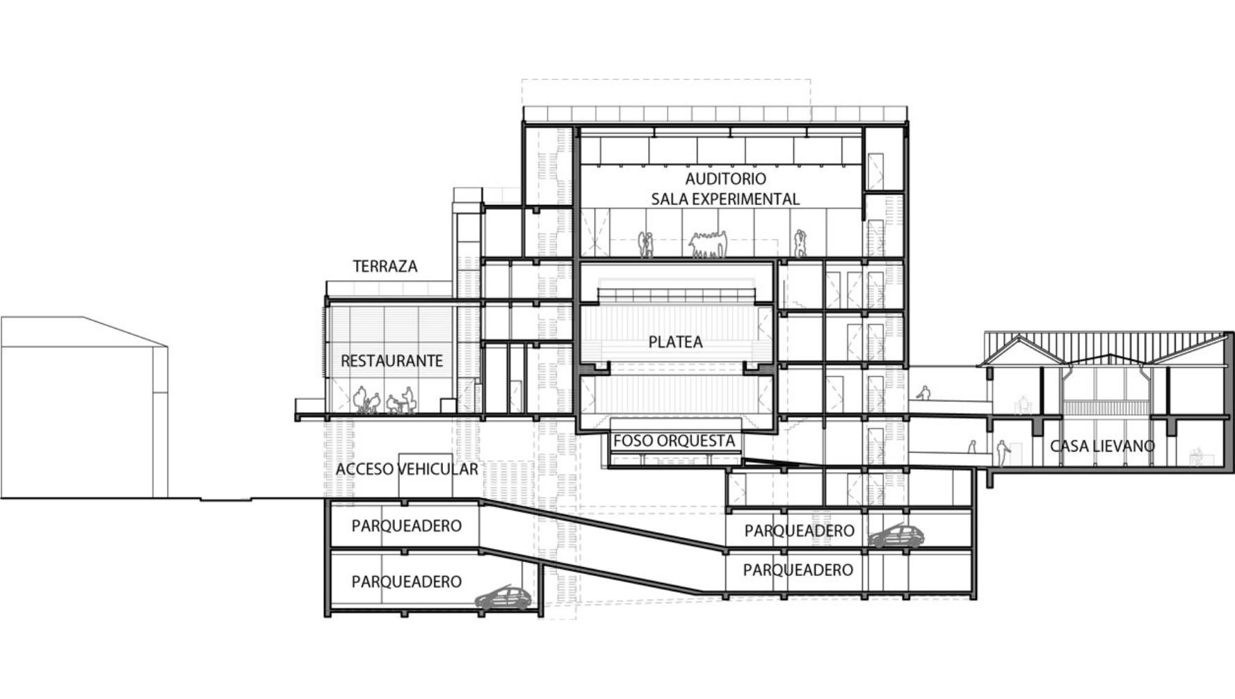
El esquema propuesto es la solución de continuidad y empate de dos formas de definir el espacio público. El proyecto propone un empate con el vacío en donde actualmente funcional el parqueadero de la Catedral Primada (cerrado por un muro que no otorga cualidades al espacio público de la carrera 6). Funcionalmente, la localización del restaurante sobre la carrera 6 permite crear balcones urbanos (similares a los antiguos gabinetes), que potencian la escena urbana del lugar, la transparencia de la esquina suroccidental de la manzana permite leer la nueva edificación y relacionarla visualmente con su contexto.












