Ficha Técnica y Memoria del Proyecto
Jefe de diseño: Daniel Bermúdez Samper
Equipo de diseño: Diego Buriticá, Jaime Romero, Javier Ruiz, Fabián Medina, Mauricio Medina.
Cálculo Estructural: Ing. Hernán Sandoval Arteaga
Estudio de suelos: Ing. Luis Fernando Orozco Rojas
Instalación hidráulica y sanitaria: Ing. Rafael Hernández
Instalación eléctrica y datos: Ing. Jaime Sánchez
Proyecto acústico: Ing. Gonzalo Durán
Diseño de iluminación: Arq. MarÃa Teresa Sierra
Constructor: Consorcio Conconcreto – Cusezar
FotografÃa: Enrique Guzmán G.
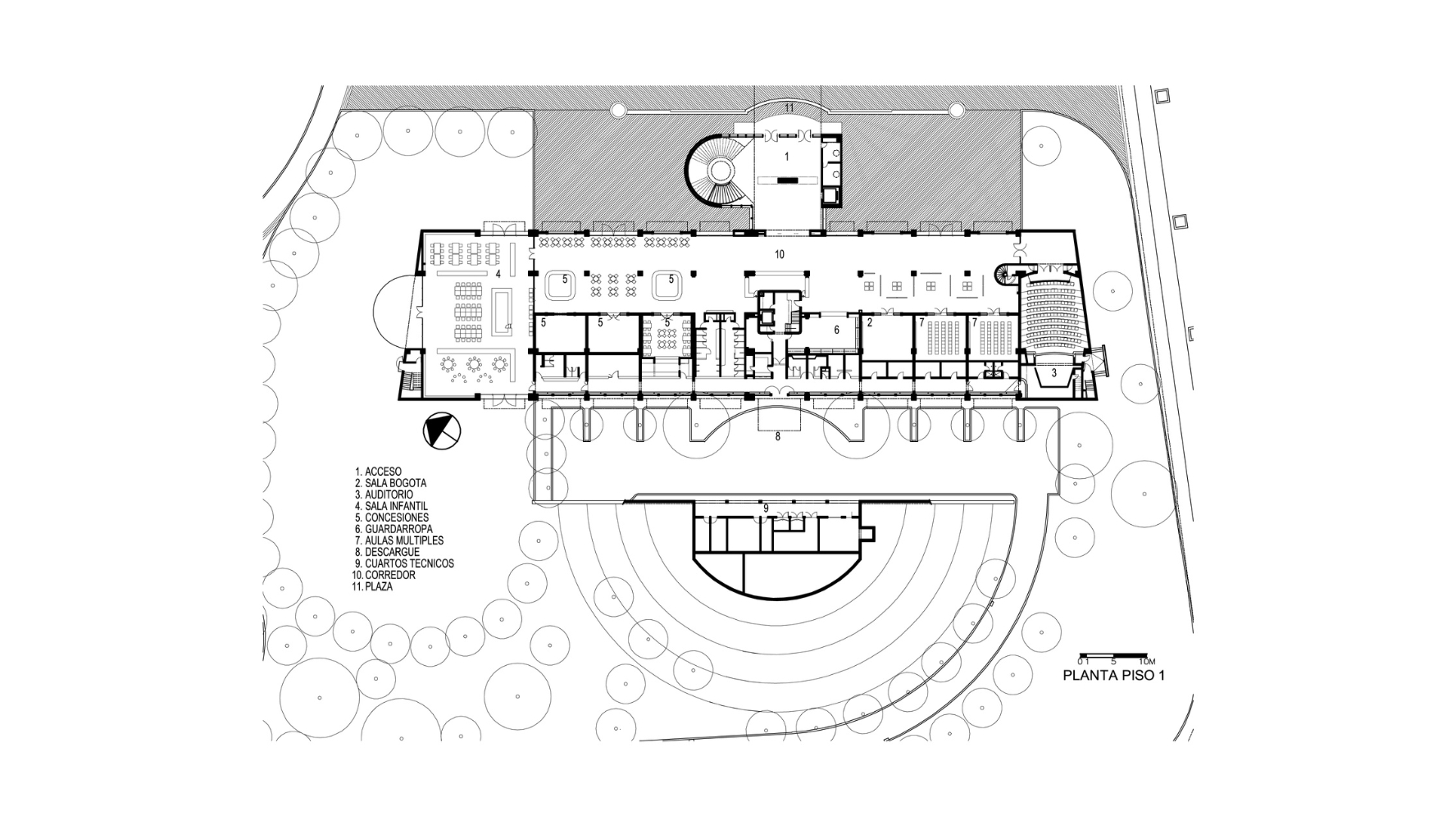
La Biblioteca El Tintal resulta de reutilizar una antigua planta de transferencia de basuras en desuso y de transformar el predio de 5 hectáreas en un parque sobre la Avenida Ciudad de Cali con calle 6ª. El edificio rescatado de la ruina era una nave fabril de 25 metros de ancho por 72 metros de largo con un área total de 3.600 m², distribuidos en dos pisos de considerable altura. Construido con una sólida estructura de concreto de grandes luces se podÃa adaptar al nuevo uso potencializando su aspecto robusto e industrial.
Un gran viaducto de 75 metros de largo que permitÃa la descarga de basura a los compactadores se convierte en el mecanismo para anunciar y dar acceso al primer y segundo piso de la Biblioteca y en un elemento de actividad y mediación con el parque.
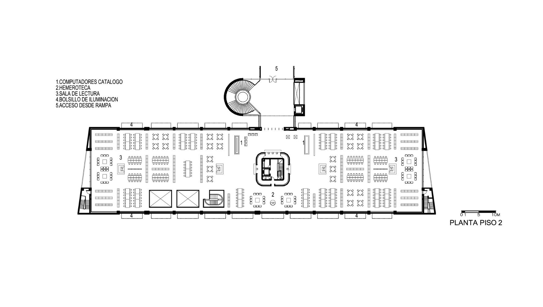
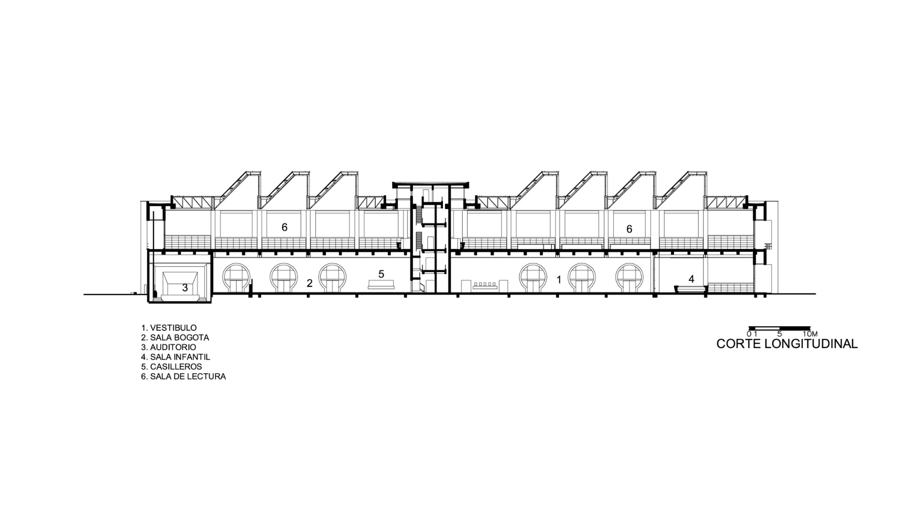
En el segundo piso se creó una gran sala de lectura de siete metros de alto coronada por siete enormes claraboyas que reciben del norte la máxima iluminación natural, sin asoleamiento. El gran espacio está flanqueado por una secuencia de bolsillos de luz que garantizan óptimos niveles de iluminación y cuenta además con dos ventanales que enmarcan de modo selectivo los rasgos más notables del paisaje lejano: la sabana y los cerros. Puesto que las instalaciones y servicios están resueltos al interior de un punto fijo central, la planta está completamente despejada garantizando una absoluta flexibilidad, asà como una notable amplitud visual y espacial.
El primer piso consta de un gran corredor, delimitado por una secuencia de ventanales y horadaciones circulares, que comunica a diversas dependencias y que remata por un extremo con un auditorio y por el otro con una sala infantil. Conservando los vacÃos de las tolvas originales, el edificio cuenta con un mezanine para albergar oficinas, la sonoteca y la videoteca. La zona técnica se encuentra fuera del bloque principal y conduce directamente a la columna central de circulaciones y canalizaciones verticales logrando un máximo de eficiencia. Todo el concreto gris de la estructura original se preservó y los elementos estructurales y arquitectónicos nuevos se fundieron en concreto claro y posteriormente se abujardaron para resaltar el agregado calizo que refleja la luz con gran intensidad.














