Ficha Técnica y Memoria del Proyecto
Jefe de diseño: Daniel Bermúdez Samper
Equipo de diseño: Jaime Romero, Adolfo Sastre, Plinio Bernal, Mauricio Medina, Andrés RodrÃguez Cálculo Estructural: Hernán Sandoval Arteaga y CÃa. Ltda.
Estudio de suelos: Sáenz Ruiz Cadena & CÃa. Ltda.
Instalación hidráulica y sanitaria: Ing. Alvaro Tapias
Instalación eléctrica y telefónica: Ing. Jaime Sánchez – SM&A Ltda.
Proyecto acústico: Construcciones Acústicas Ltda.
Diseño de iluminación: Arq. MarÃa Teresa Sierra
Estudio de tráfico vertical: Ing. Rafael Beltrán
Constructor: Conconcreto S.A. Gerencia de proyecto, presupuesto y programación: Payc Ltda. FotografÃa: Enrique Guzmán
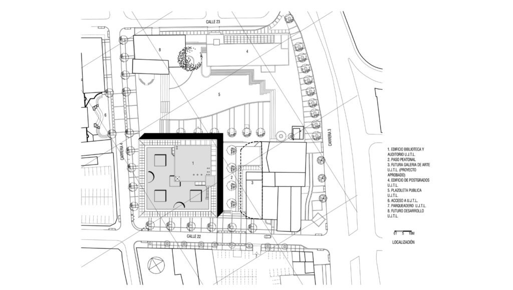
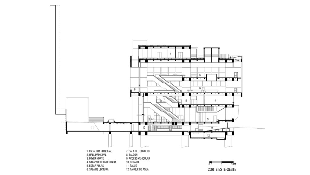
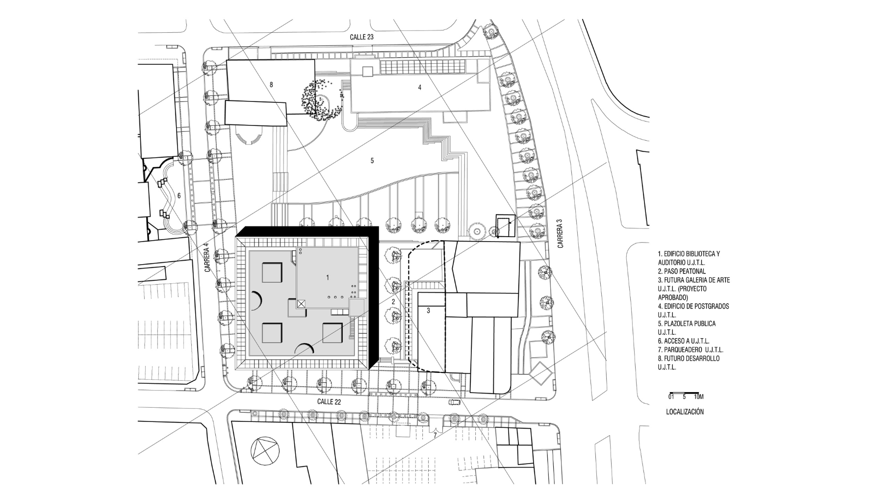
El proyecto contempla el desarrollo de un edificio y de una plazoleta que tiene por objeto articular e integrar la Universidad Jorge Tadeo Lozano con el centro de Bogotá, revitalizando y convirtiendo en campus abierto y público lo que antes fuera un deteriorado suburbio residencial e industrial. El edificio resulta de sobreponer un volumen de 47 metros de ancho y fondo a otro de 40 metros de ancho y fondo, generando en primer piso un deambulatorio perimetral cubierto que se extiende por los andenes de las calles aledañas. Con una altura total de 30 metros, el edificio consta de 4 grandes pisos, con alturas libres que oscilan entre los 3.4 y los 6.1 metros. Los accesos principales y los grandes ventanales del edificio se encuentran sobre la esquina nororiental, enmarcando el imponente Cerro de Monserrate y garantizando visuales, iluminación y calor de la mañana a sus principales dependencias. Las fachadas hacia el sur y occidente están cerradas para proteger el interior del incómodo sol de la tarde, del ruido del entorno urbano y de visuales sobre deteriorados centros de manzana. Tanto el aislamiento del ruido como el adecuado manejo de la iluminación, la acústica, la protección solar y la circulación, son las preocupaciones fundamentales del proyecto. Respuestas racionales e innovadoras a las anteriores variables garantizan una adecuada relación del espacio interior con las actividades que alberga.
Â
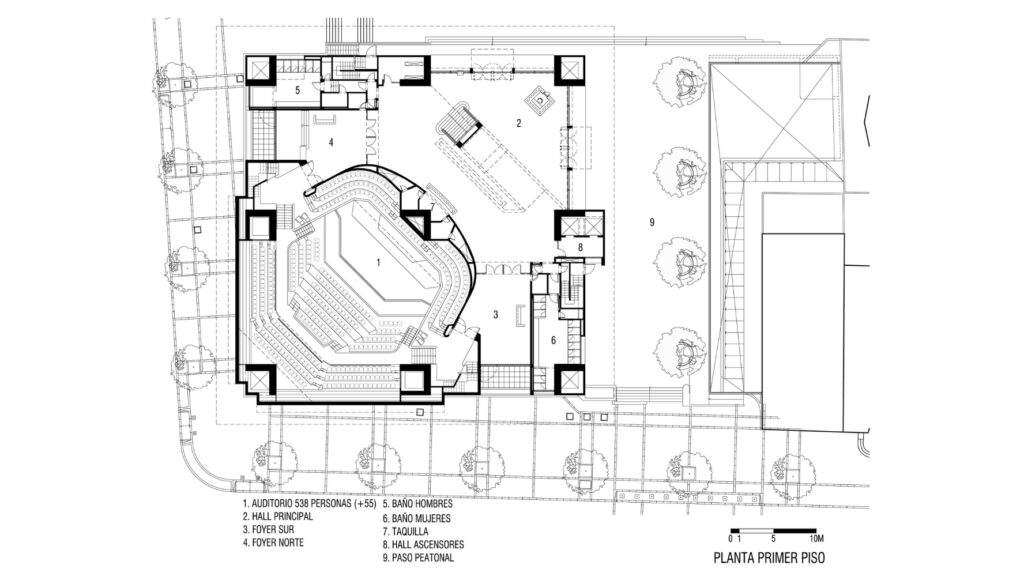
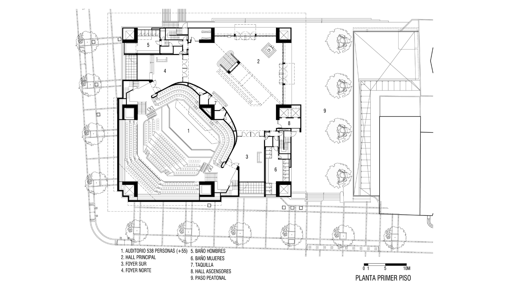
El auditorio, ubicado en el primer nivel, puede utilizarse para música sinfónica, de cámara y eventos varios. Es un auditorio de acústica variable, que resulta del empleo de interesantes deflectores en vidrio templado y de un sistema que permite incorporar volúmenes adicionales según el coeficiente de reverberación que se necesite. La Biblioteca de formato abierto ocupa los pisos 3º y 4º, comunicados entre sà por una escalera y por un gran vacÃo sobre la esquina nororiental del edificio. Diversos sistemas de iluminación cenital introducen luz a los espacios interiores sin que el sol directo afecte la lectura. Cada planta de 2.200 m² está sostenida por 9 elementos de soporte, con forma de escuadra de 3.60 metros de lado, salvando luces de cerca de 15 metros y voladizos de 3.5 metros. Por sus grandes dimensiones estos elementos estructurales delimitan salas de reuniones, albergan ductos mecánicos y cuartos técnicos.



















