Ficha Técnica y Memoria del Proyecto
Jefe de diseño: Daniel Bermúdez Samper
Equipo de diseño: Arq. Diego Buriticá, arq. Jaime Romero, arq. Fabian Medina, arq. Mauricio Medina, arq. Andrés Rodriguez
Cálculo Estructural: P & D Proyectos y Diseños Ltda.
Estudio de suelos: Ing. Agusto Espinosa Silva
Instalación hidráulica y sanitaria: Ing. Alvaro Tapias
Instalación eléctrica y datos: Ing. Jaime Sánchez
Constructor: H. Rojas & Asociados Ltda. (estructura) Prabyc Ing. Ltda (acabados)
Fotografía: Enrique Guzmán
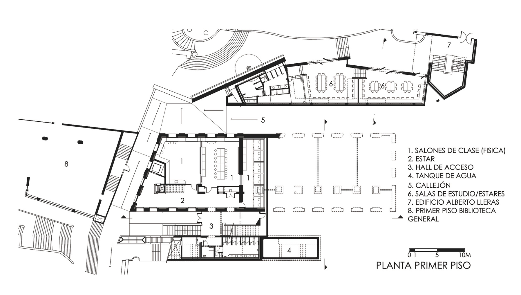
Construido a comienzos del siglo XX con un propósito industrial, está clasificado como de Conservación histórica. Ocupa un lote alargado que recorre una pendiente entre la parte baja y el centro del Campus. Para aprovechar este emplazamiento estratégico, el proyecto propone la integración del Bloque B al sistema de circulación peatonal cubierto y sin barreras físicas de la Universidad de los Andes. Para ello contempla la adición de un ascensor y de una escalera entre una envolvente acristalada que sigue la pendiente del terreno y que se adosa al edificio del modo ligero y traslúcido en que solía hacerlo un balcón preexistente.
Además de respetar la volumetría y los principios de circulación de la construcción original, el proyecto de intervención conserva otras características significativas como la envolvente en mampostería, el ritmo de vanos y la configuración de su cubierta.
El edificio, sin embargo, presentaba una estructura débil, incapaz de resistir movimientos sísmicos e incendios. Por tal motivo fue necesario realizar un reforzamiento estructural de crujía simple mediante apoyos ocultos entre la estructura original y placas de concreto. Gracias a una intervención discreta fue posible dotar cada piso de plantas libres flexibles.
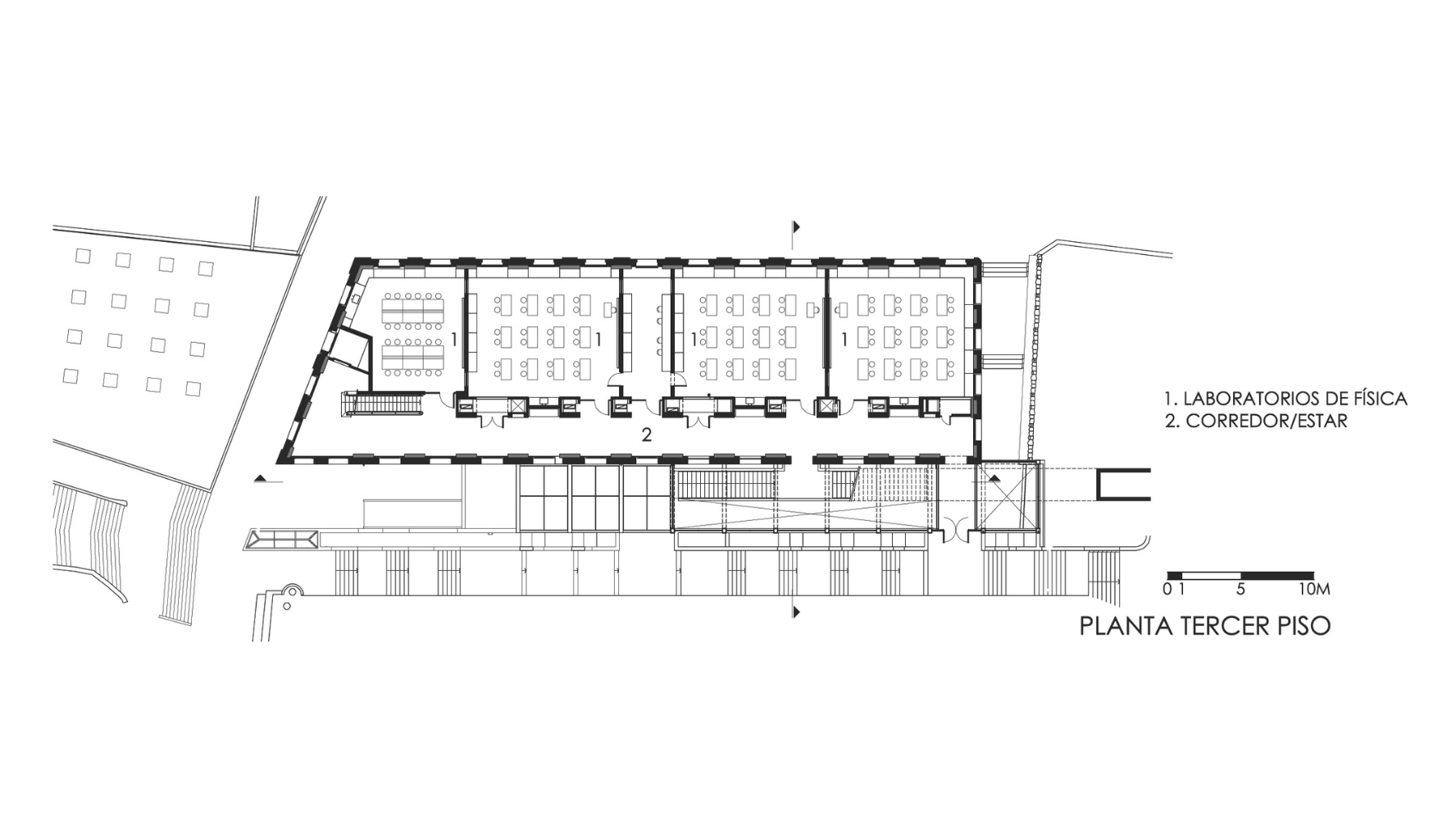
A razón del programa que contempla laboratorios, aulas, auditorios y salas de cómputo, resulta necesario adoptar medidas técnicas avanzadas en un edificio tradicional. Para no reducir las alturas interiores o alterar fachadas, el proyecto propone ductos verticales y cuartos técnicos que permiten el tránsito efectivo de redes y tuberías y que establece un límite espacial entre circulaciones y aulas. Se restauraron igualmente 32 ventanas originales y se realizaron nuevas en aquellos espacios con exigencias acústicas y de protección solar específicas.











