Ficha Técnica y Memoria del Proyecto
Jefe de diseño: Daniel Bermúdez Samper
Equipo de diseño: Fabián Medina, Javier Ruiz, Jaime Romero
Cálculo Estructural: P&D Proyectos y Diseños Ltda.
Estudio de Suelos:Â Ingeniera y Geotecnia Ltda.
Instalación hidráulica y sanitaria: Espinel & Cia.
Instalación eléctrica y datos: Otero & Umaña Otum Ltda.
Diseño Acústico: Construcciones Acústicas Ltda.
Seguridad y Control:Â Antonio GarcÃa Rozo Y Cia Ltda.
Constructor:Â Consorcio Civilia ltda. Pizano Pradilla Caro Restrepo ltda.
InterventorÃa:Â Ribon Catala & Cia .
FotografÃa: Germán Téllez, Enrique Guzmán
El plan de ordenamiento de la Universidad de 1989 determinó la posibilidad de construir un edificio en la esquina sur occidental del Campus, lugar de importancia para la institución porque colinda con el acceso original a la Universidad siguiendo un tradicional camino de pinos, y con un angosto callejón de comienzos del siglo XX.
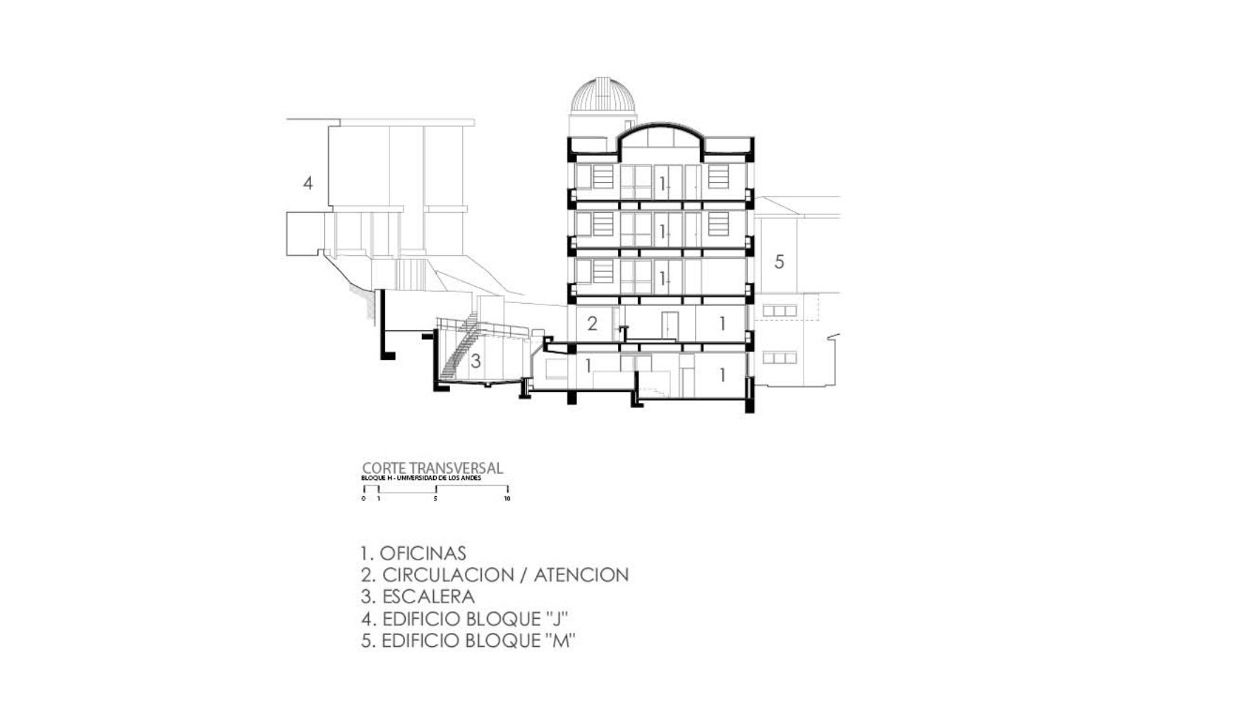
El programa contempla la distribución en cuatro pisos de las direcciones, oficinas y espacios de atención de los departamentos de fÃsica y matemáticas. Puesto que programas de esta naturaleza demandan cambios constantes en la distribución interior del espacio, el proyecto propone plantas libres de 12 x 14 m2 que descansan sobre cuatro únicas columnas en las esquinas. Para vencer estas grandes luces los antepechos se comportan como vigas principales. La estructura, en concreto blanco a la vista, determina por tanto la apariencia del edificio en una absoluta sincronÃa entre la dimensión técnica y el cometido funcional del edificio.
Dos elementos arquitectónicos complementan este nÃtido prisma rectangular: un patio semicircular enterrado que ilumina desde oriente un semisótano y que contribuye a la configuración de los recorridos exteriores, y un punto fijo vertical compuesto por un ascensor y por una escalera en caracol de 4.8 metros de diámetro que asciende, como un faro blanco helicoidal, hasta la cúpula de un observatorio astronómico.














