Ficha Técnica y Memoria del Proyecto
Jefe de diseño: Daniel Bermúdez, Ramón Bermúdez
Equipo de diseño: Luis Ángel Rivera, Juan Camilo Ortegón, Daniela Almansa, Juan Antonio Olarte, Ricardo Ariza, Santiago Izquierdo, Valeria Gómez Lara, Jaime Barrera, Paula Sopó, David Caballero, Laura Dorado, Santiago Salazar, Juan Fernando Martínez, Sergio Jiménez, Eduardo Sánchez
Urbanismo, Zonas exteriores y Paisajismo: Diego Bermúdez
Cálculo Estructural: SOIC Ingenieros Civiles
Estudio de suelos: Alfonso Uribe S. y Cía. S.A
Instalación hidráulica y sanitaria: I.H.G S.A Ingeniería Hidráulica
Proyecto Eléctrico y Datos: SM&A Ltda. Ingeniería Eléctrica y mecánica
Presupuesto y programación: Asinter Ingenieros Ltda.
Proyecto acústico: ADT Diseño & Tecnología Daniel Duplat
Diseño de iluminación: MTS, María Teresa Sierra.
Asesor Bioclimática y Sostenibilidad: Arquitectura & Bioclimática. Jorge Ramírez
Estudio de tráfico vertical: Ing. Rafael Beltrán
Renders: Ricardo López
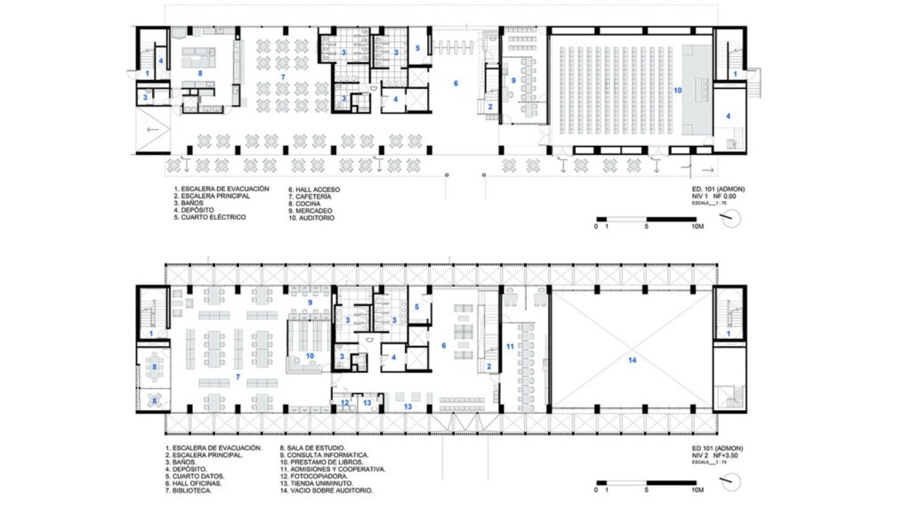
El clima de la ciudad de Villavicencio puede considerarse como un caso tipo de estudio para las zonas cálidas de la geografía colombiana. Situada a 450 msnm, con una temperatura promedio anual de 25.5° C y una sensación térmica acrecentada por una humedad relativa cercana al 80%, necesariamente requiere de unas estrategias para atemperar los espacios del campus. La arquitectura está en capacidad de proveer un confort térmico suficiente tanto al interior de los salones como en los espacios públicos del campus y ese es el cometido de este proyecto. Con este reto en mente se han planteado una serie de estrategias espaciales conducentes a lograr el lugar más cómodo posible para estudiantes, docentes y administrativos del campus.
Por un lado, la orientación de los diferentes volúmenes en el solar de más de 2 Ha prioriza que los edificios de 5 pisos de aulas tengan la mejor relación de soleamiento. La administración de 4 niveles se paramenta con la vía de acceso y por lo tanto requiere de una segunda piel en calado para protegerse del sol de mañana y tarde.
Por otro, la ventilación natural trae consigo el ruido del campus que debe ser controlado ya que las aulas necesitan de silencio para lograr condiciones óptimas de confort. Para esto se han propuesto unos patios de silencio hacia donde abren todas las aulas y unas trampas acústicas entre las circulaciones y las aulas que permiten el paso del aire, pero no del ruido. Los edificios de aulas no tienen vidrio y el límite entre interior y exterior se define a través de calados, persianas y puerta-ventanas deslizantes.
El manejo del espacio público en el proyecto se desarrolla en dos plazoletas principales ubicadas entre las edificaciones en donde se proyectan suelos permeables y vegetación autóctona para aportar al componente bioclimático de los espacios interiores. El agua es el asunto central del proyecto de exteriores y se convierte en el material de diseño siempre cambiante para definir zonas secas (edificaciones) , zonas de escorrentías (plazas y zonas de estar) y zonas inundables (jardines de lluvia y estanques).
Este pequeño proyecto resulta interesante dentro de la obra de Bermúdez Arquitectos porque deja de nuevo en evidencia una característica de su propuesta arquitectónica que busca integrarse y complementar el entorno, no a partir de una propuesta conservacionista o “museística”, sino muy por el contrario, con un claro interés por dotar a las edificaciones preexistentes de nuevas herramientas que les permitan seguir cumpliendo su función según las necesidades del momento. Este es un delicado proceso en el que se deben respetar y conciliar las características propias del edificio existente y de su entorno, con la incorporación de los nuevos requerimientos espaciales, estructurales o en este caso ambientales, que de esta manera asegurarán su refuncionalización y por consiguiente su conservación. Es un punto de inflexión importante frente a esa arquitectura de la modernidad que en su momento se fue cargando de contenidos cada vez más reactivos contra toda manifestación de conservadurismo formal. Origen de la consabida imposibilidad natural de hacer una arquitectura moderna integrada a contextos históricos, ya que su naturaleza se tenía que presentar como contrapuesta frente a ellos. En contraste, la posición de Bermúdez resulta antagónica y su trabajo se muestra muy efectivo al momento de intervenir contextos urbanos consolidados, como el campus de la Universidad de los Andes, situación que se explica por la aplicación juiciosa de las consideraciones técnicas, de uso y lugar que incorpora dentro del proceso de cada proyecto.
Con la determinación de conservar el inmueble, se tomó la decisión de mantener su apariencia exterior, adosándole un volumen circular semienterrado sobre el costado norte, en el que situó la nueva biblioteca. La biblioteca es de estantería abierta, con un mezanine y se ilumina cenitalmente. En la cubierta de esta situó un “techo verde”, que logra mimetizar con éxito la intervención, al tiempo que se integra y complementa el volumen existente.





















