Ficha Técnica y Memoria del Proyecto
Jefe de Diseño: Ramón Bermúdez.
Equipo de Diseño: Claudia Olalla, Andrés Rengifo, Laura Rodríguez, Valeria Galán, Paula Sopó, Diego Forero.
Diseño arquitectónico: Bermúdez Arquitectos
Boiclimática: Paissá, Jairo Villegas
Estructura: Matecsa
Fachada: Hunter Douglas
Ventanas: Sistema Zinu, Rafael Pérez
Constructor: Nicolás Lizarralde
Fotos y video: Bé Estudio, Paola Pabón & Santiago Beaumé ©
Refugio de alta montaña
Ubicada en la mitad del campo, en una reserva natural privada a 3100 metros sobre el nivel del mar, Casa Carupa es un refugio de alta montaña que se adapta a las necesidades del habitar en un clima tropical de alta montaña, también conocido como sub-páramo, por ser punto intermedio entre el páramo y el bosque alto Andino, cuyas temperaturas que oscilan repentinamente entre 0 y 21 grados C en un mismo día.
Bajo estas condiciones climáticas y geográficas (con unas vistas privilegiadas de los Andes, alejada de todo y en un lugar que pretende conservar al máximo las condiciones naturales preexistentes), el proyecto se concibe siguiendo estas premisas:
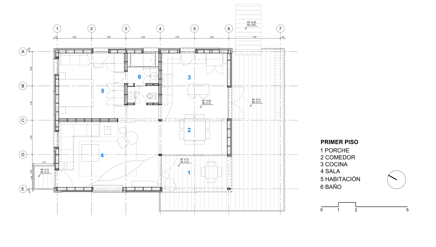
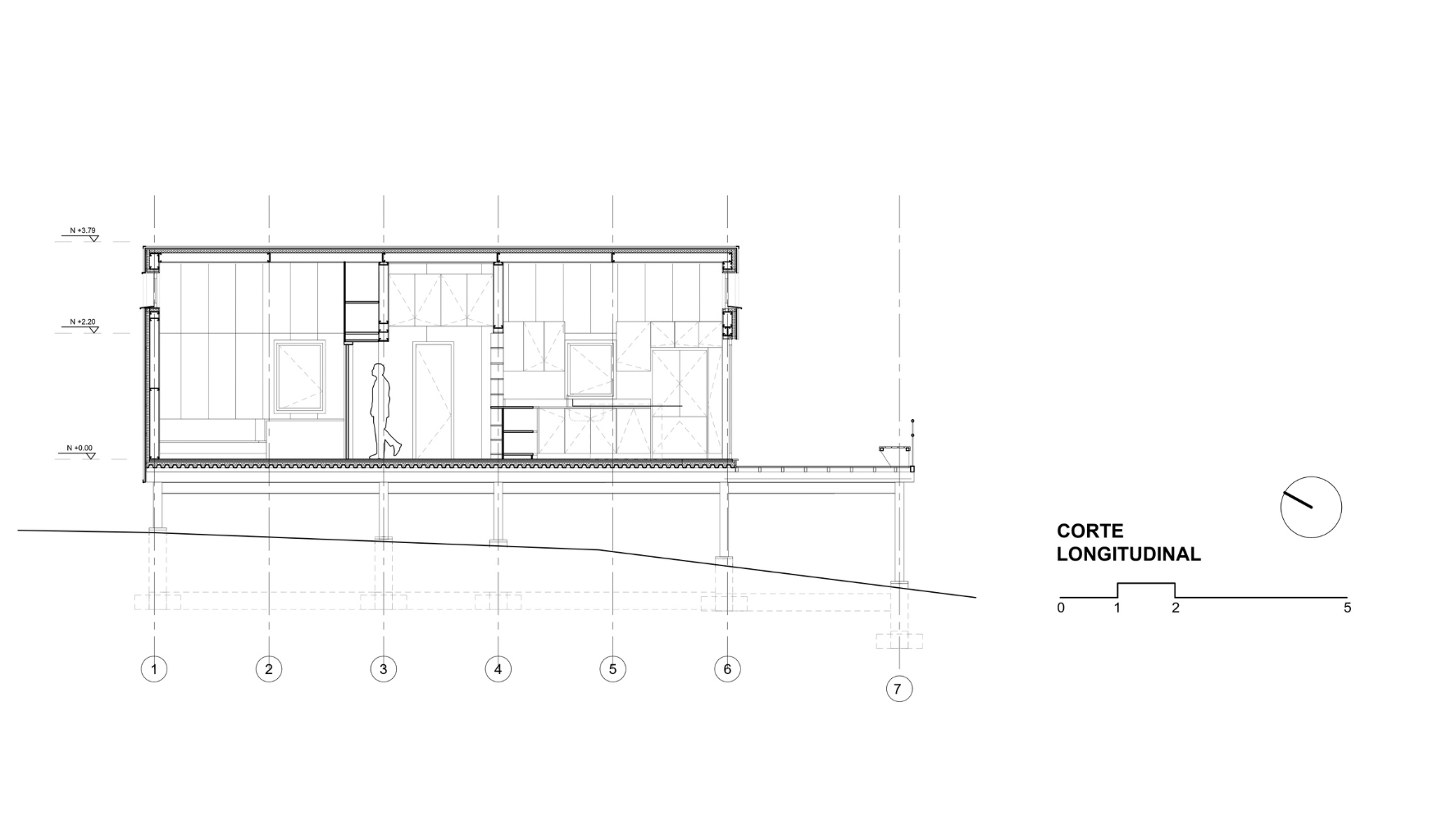
– Primero, se diseña para ser construido como un refugio de una sola habitación prefabricado en seco con la intención de traer la inmensa mayoría de los materiales premontados y cortados y volver el proceso un montaje en seco con el menor impacto en el entorno. El único proceso húmedo con concreto se hace en los 15 dados de cimentación. La estructura de este volumen se construyó en seco mediante el sistema de Steel framing, un muy liviano sistema estructural estandarizado donde todos los perfiles colaboran a la estabilidad del conjunto, y una placa de Steel Deck con forjado seco tipo sándwich y OSB de 20mm.
– El proyecto Parte de una modulación de 4m x 4m, dónde en cada módulo se ubica la habitación, cocina, estar y el comedor con porche. Estos módulos son ensamblados con una franja intermedia de 2 m x 4m destinada al cuarto de baño y la ampliación de la zona social, conformando así un volumen rectangular rematado por una cubierta en forma de diente de sierra.
– La modularidad del sistema constructivo y la estandarización de los espacios hace que la casa pueda crecer en el tiempo con el mismo modulo estructural y espacial conformando una vivienda de más habitaciones y espacios exteriores.
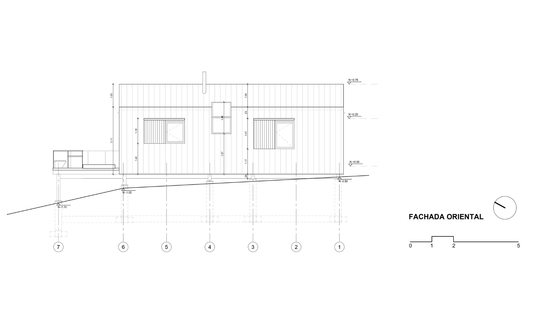
– La envolvente está cuidadosamente pensada para lograr el mayor confort térmico posible sin consumir energía. Para esto, se conciben los ventanales y lucernarios de esta estructura están orientados hacia el sol de la mañana con el objetivo de aprovechar al máximo la radiación solar y captarla al interior. Una vez captada, la intención es conservarla lo más posible al interior reduciendo las pérdidas de calor. El paquete térmico de fachada, placa y cubierta está compuesto por varias capas de protección impermeable (teja en lámina metálica, y capa impermeabilizante), térmica (capas intermedias de poli estireno expandido y lana de roca) y de barrera de vapor para lograr un sistema de “estructura caliente”. Las ventanas se especificaron con rotura de puente térmico, permitiendo grandes aperturas al paisaje sin perder eficiencia en el aislamiento.
– En busca de la discreción necesaria para aterrizar en un lugar así, el refugio busca diferenciarse del paisaje sin llegar a ser llamativo. Por esta razón se ha escogido un material único para la fachada hecha de teja metálica grapada pintada al horno con un color azul marino escogido para esta ocasión. Dicho color es complementario a la paleta general de colores del paisaje, con lo que la casa se disimula en el bosque alto andino sin caer en el camuflaje directo de corte militar.
– En oposición al exterior austero y frío, los muros interiores están forrados en paneles de madera OSB que en complemento con un suelo en vinilo de color cálido garantiza una sensación de calidez y domesticidad.




























