Ficha Técnica y Memoria del Proyecto
Jefe de diseño: Daniel Bermúdez Samper
Equipo de diseño: Billy Cappa, José Luis Contento.
El proyecto de intervención de la casa consistió en remodelar y reformar una edificación pre-existente para obtener una casa blanca y luminosa de espacios amplios y regulares.
Alrededor de los años sesenta el propietario del terreno donde hoy está situada la casa, un artista inglés interesado además en el cultivo de variedades especiales de champiñones, construyó en su jardÃn dos galpones de 6 por 12 metros que unidos conformaban un área de 144 metros cuadrados. Pocos años después y para aprovechar la construcción existente, decidió transformar esos galpones en una vivienda sencilla y rústica de estilo neo colonial.
La Casa cambió de propietario y Daniel Bermúdez fue invitado para reformarla y adaptarla a los requerimientos de su nuevo dueño. El arquitecto respetó la volumetrÃa cúbica, la cubierta original en teja, asà como los muros de carga originales. La reforma, además de tratar acabados y ventanerÃa, se concentró en una redistribución de estancias y circulaciones.
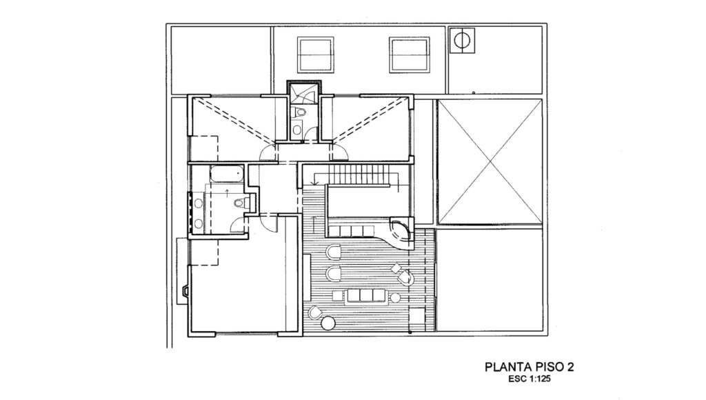
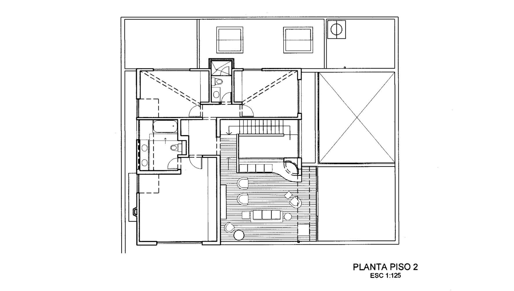
Como resultado, el primer piso quedó conformado por comedor, cocina, estudio, alcoba de huéspedes y zona de servicio. La sala principal, asà como la terraza y tres alcobas pasaron al segundo piso. Gracias a esta redistribución se logró un uso cotidiano de la sala, principal espacio de reunión en todo hogar. Las estancias más importantes de la casa, por estar en segundo piso, cuentan con mejores vistas, mayor altura libre y una temperatura ambiental más agradable.












