Ficha Técnica y Memoria del Proyecto
Jefe de diseño: Daniel Bermúdez Samper e Inés Obregón
Equipo de diseño: Gaelle Berguin, Claudia Olalla
Constructor: Alejandro Cavanzo
Calculo Estructural: PEYCO
Diseño eléctrico: SMYA, Jaime Sánchez
Diseño hidrosanitario: Rafael Hernández
Iluminación: María Teresa Sierra
Paisajismo: Diana Wiesner
Fotografía: Enrique Guzmán, Daniel Bermúdez
Texto: Ramón Bermúdez
Todo comenzó por la asesoría al cliente sobre la mejor parcela posible dentro de una urbanización de casas de recreo en Tocaima, un pueblo de clima cálido a las afueras de Bogotá.
El lugar finalmente elegido cuenta con una imponente vista lejana que coincide con una orientación sur, favorable en esta zona tropical y a su espalda cuenta con un impresionante piedemonte que conforma un telón de fondo verde. La parcela es lo suficientemente amplia para tener un jardín frondoso y cuenta con una pendiente no muy pronunciada que la hace ideal para construir una casa de fin de semana.
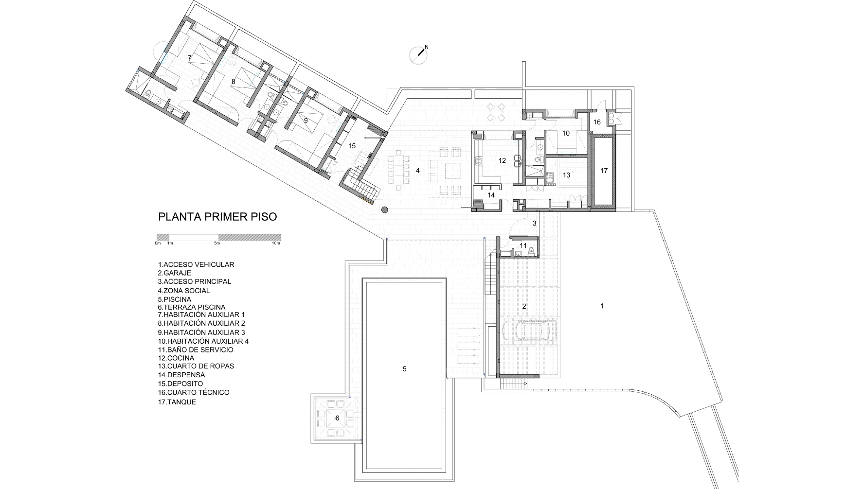
El esquema de la casa en forma de L abierta, localizada en el centro de la parcela, organiza los espacios en dos niveles con el salón en el centro del esquema en el primer nivel, abierto a lado y lado para aprovechar de la ventilación cruzada. De esta manera el salón tiene por un lado la vista lejana enmarcada por la piscina y por otro la pared verde del piedemonte.
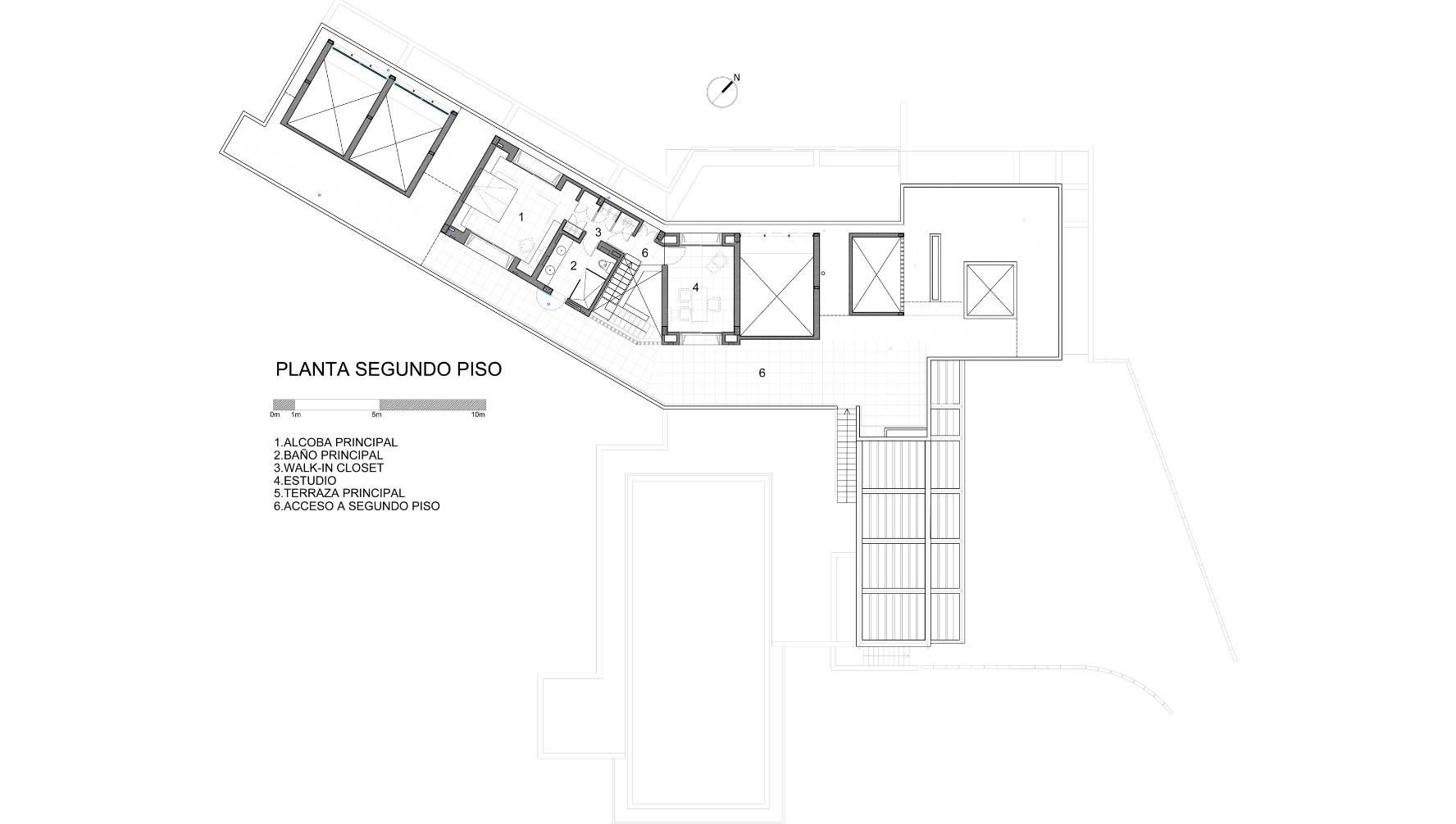
En el primer piso se encuentra a un costado de la zona social la zona de servicio con la cocina abierta y en el otro las habitaciones de niños e invitados. El segundo piso se reserva para los dueños con la habitación principal, un baño y un generoso estudio, logrando la privacidad buscada por los dueños de la casa.
El juego de cubiertas inclinadas y lucernarios pensados para captar el aire fresco y la mejor orientación y enfocar la pared verde del cerro, le dan un aspecto fragmentado a la casa que sin embargo es muy compacta.
















