Ficha Técnica y Memoria del Proyecto
Jefe de diseño: Daniel Bermúdez, Ramón Bermudez, Diego Bermúdez
Equipo de diseño: Jaime Barrera, Valeria Gómez, Luis Ángel Rivera
Zonas exteriores y Paisajismo: Diego Bermúdez
Cálculo Estructural: CNI Ingenieros Consultores Ltda, Nicolas Parra
Instalación hidráulica y sanitaria: PLINCO, Carlos Javier Parrado
Presupuesto: PAYC Ltda.
Proyecto Eléctrico y Datos: SM&A Ltda, Jaime Sanchez
Diseño de iluminación: MTS, María Teresa Sierra.
Calefacción: SOL-ARS
Ventilación Mecánica: Ing. Mauricio Gómez
Fotografía: Simón Bosch, Bermúdez Arquitectos
Localizadas en el tradicional barrio Bosque Izquierdo en Bogotá, diseñado en los años 30 del siglo XX por el urbanista Austriaco Karl Brunner, las Casas Granés son dos casas desarrolladas desde 1957 hasta 1962 en dos etapas de construcción sobre un lote triangular de la zona. Desde el inicio, las casas fueron concebidas como una sola, dándose la espalda, una mirando a la calle y la otra hacia la carrera. Fueron diseñadas por Vicente Nasi, arquitecto italiano que desarrolló su obra en Colombia, Venezuela, Italia y Sudáfrica y fue uno de los pioneros de la arquitectura moderna colombiana. Fue contratado por el señor José Granés Mont que había adquirido un lote en el barrio Bosque Izquierdo, con el fin de construir su vivienda, la de mayor tamaño en el costado occidental, y una vivienda para alquilar más pequeña en el oriente.
Las casas permanecen intactas en un barrio tradicional de casonas bien conservadas y abundante arborización. El estilo de las casas está evidentemente influenciado por la arquitectura orgánica y el estilo “Prairie” de Frank Lloyd Wright. Las Casas Granés son un ejemplo de lo que se podría llamar arquitectura moderna “de estilo”, desarrollada en un periodo extraordinario de la arquitectura moderna en Colombia, pero haciendo referencia a una corriente que había tenido su auge en los Estados Unidos casi cinco décadas atrás.
El proyecto en cuestión cuenta con dos fases. La primera etapa corresponde a la readecuación de la casa grande en oficinas y es la que exponemos aquí mientras que la segunda etapa está en proceso para convertir la casa pequeña en 3 apartamentos para renta.
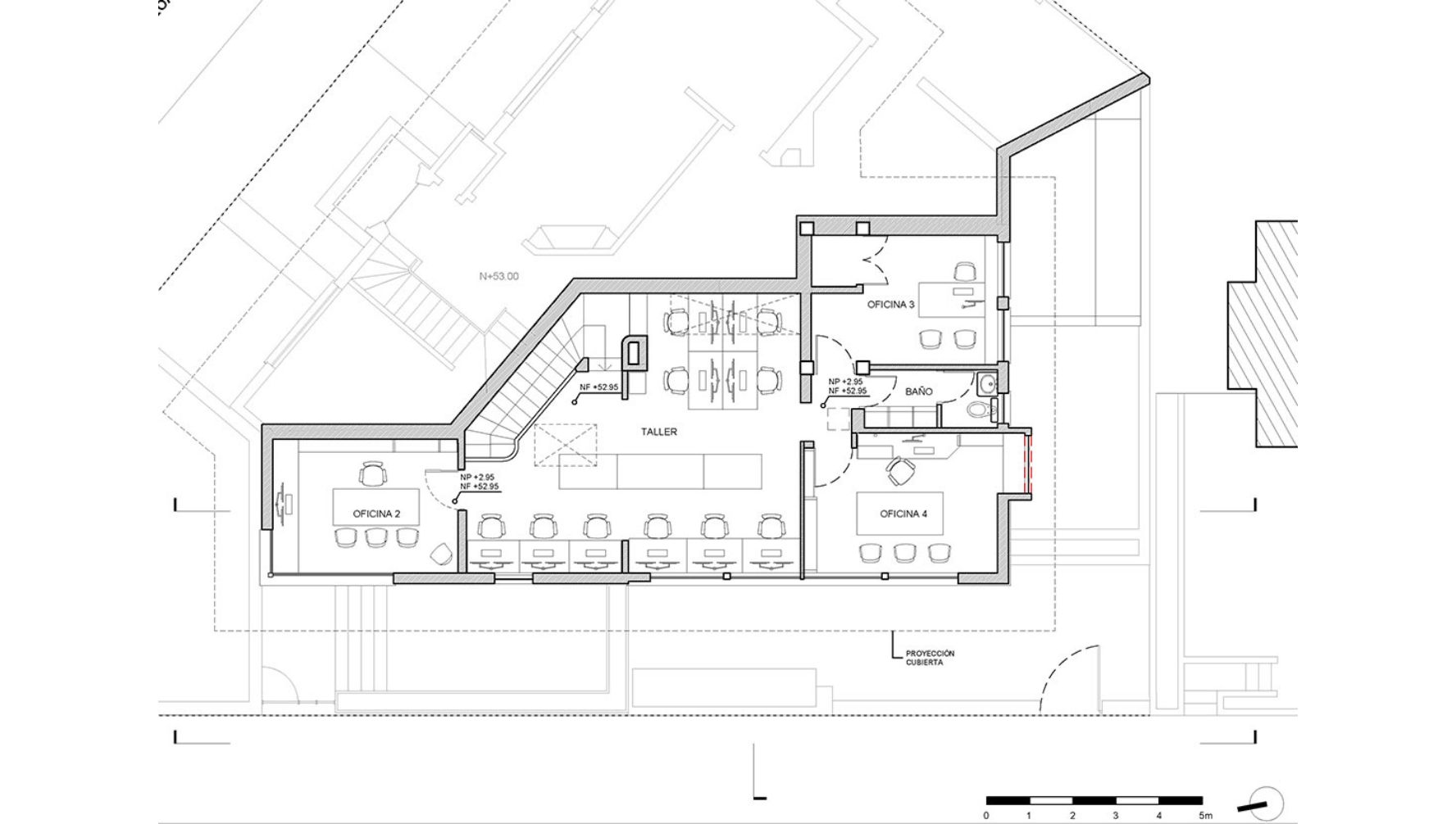
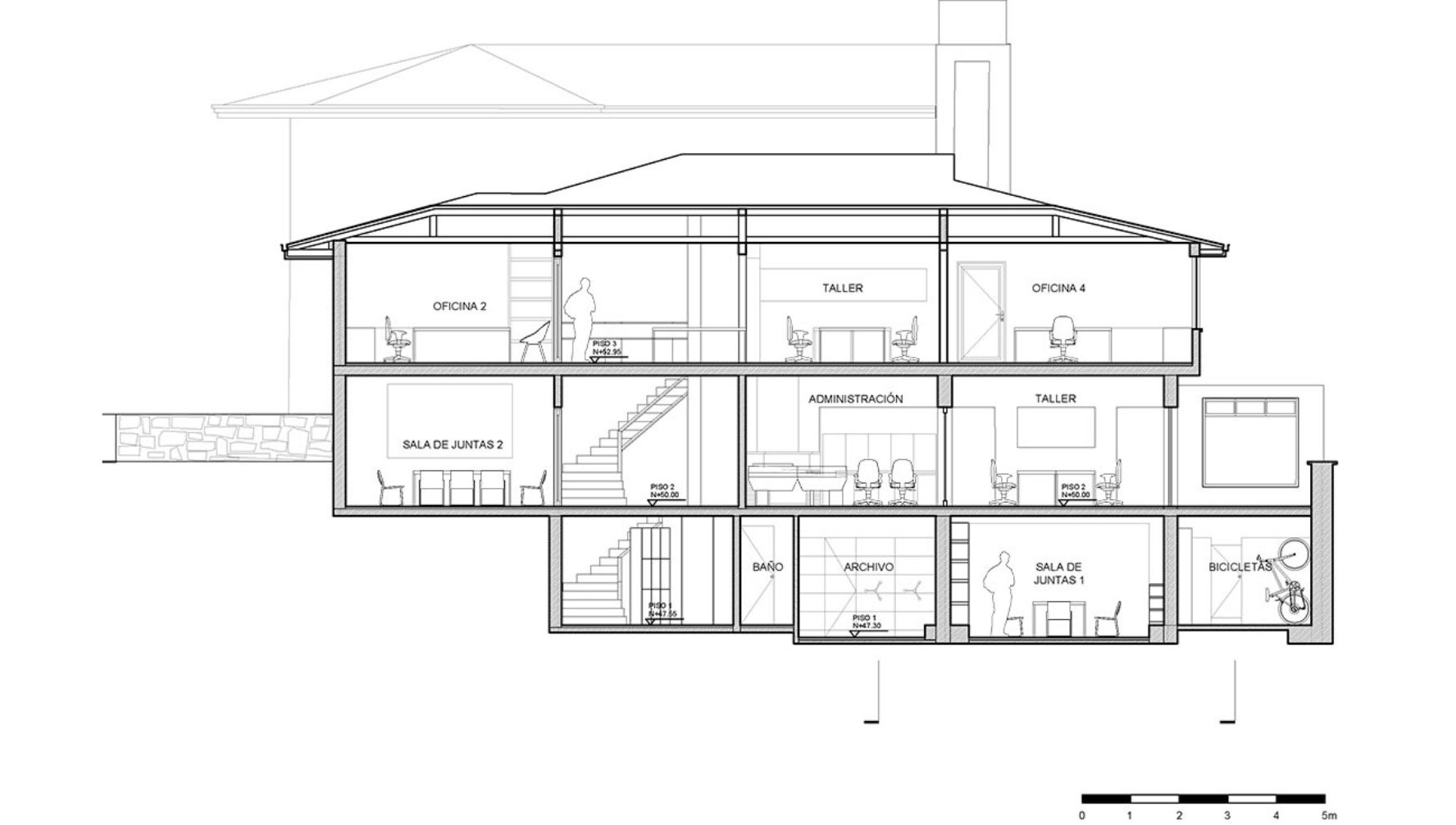
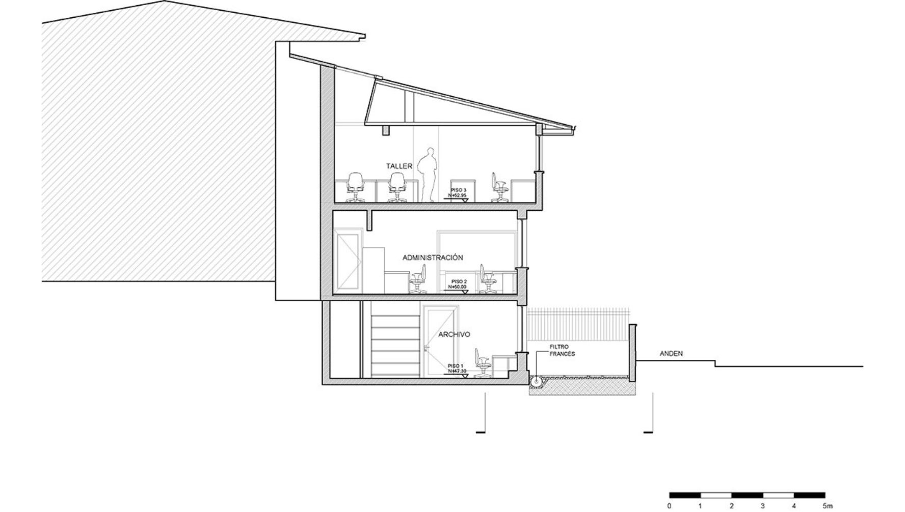
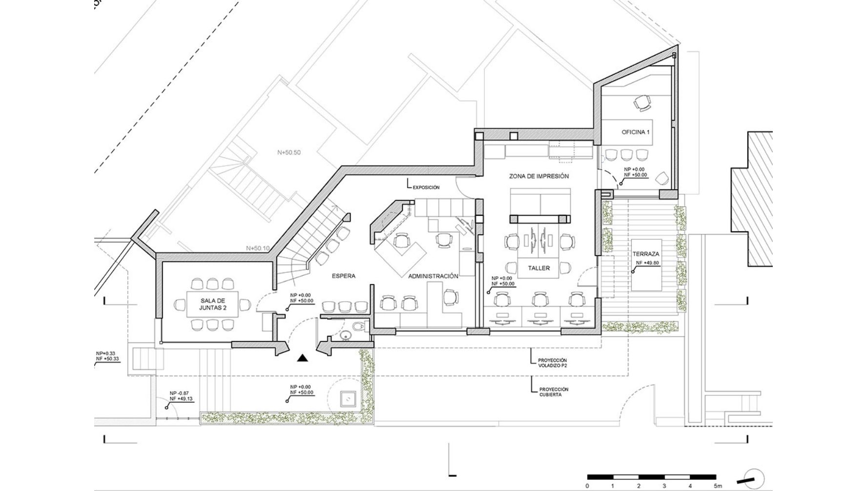
La casa se desarrolla en 2 pisos y un semisótano con un sistema estructural basado en muros de carga sobre los que descansan entrepisos con viguetas de concreto construidas con bloques aligerados prefabricados de concreto y una estructura en madera que soporta la cubierta. Los criterios de intervención buscaron adecuar funcionalmente el inmueble, de un uso de vivienda unifamiliar a una oficina especializada. Para ello, fue necesario hacer algunas modificaciones espaciales que permitieron abrir un poco más los espacios y las circulaciones teniendo en cuenta la necesidad de un sistema de trabajo contemporáneo de oficina-taller, basado en la colaboración y contacto. En la intervención se cuidó la estructura espacial del inmueble conservando las circulaciones verticales originales y las líneas compositivas del diseño original de Nasi, logrando que no se aumentara el área construida ni se afectara su valor histórico y patrimonial.
La adecuación del semisótano consistió en una adaptación de la cocineta existente para albergar una mesa más grande para albergar al equipo en el descanso del medio día, reubicando el mesón y aparatos. También se proyectó una zona de jardín extensa incluyendo una mesa exterior prefabricada y acceso directo al nuevo bicicletero en la zona del antejardín que había sido pavimentado y tomado como parqueadero. Por último, el antiguo garaje se adaptó como la nueva sala de juntas principal con modificaciones en las ventanas sobre fachada para garantizar condiciones óptimas de iluminación y ventilación de los espacios. El primer piso y acceso principal a la casa, sufrió modificaciones menores de demolición de muros que permitieron unificar los espacios y asegurar el buen funcionamiento de las áreas en su nuevo uso, incluyendo la recuperación de la ventana que hacía parte de la licencia original en el antiguo cuarto de ropas, ahora oficina privada. Las modificaciones del último nivel buscaron crear un espacio central y abierto, eliminando uno de los dos baños y los muros del cuarto principal para conformar esta área central, garantizando la iluminación y ventilación del espacio por medio de las ventanas de la fachada y dos lucernarios existentes recuperados. Las tres habitaciones restantes, fueron dispuestas como tres oficinas privadas en este nivel.
Este pequeño proyecto resulta interesante dentro de la obra de Bermúdez Arquitectos porque deja de nuevo en evidencia una característica de su propuesta arquitectónica que busca integrarse y complementar el entorno, no a partir de una propuesta conservacionista o “museística”, sino muy por el contrario, con un claro interés por dotar a las edificaciones preexistentes de nuevas herramientas que les permitan seguir cumpliendo su función según las necesidades del momento. Este es un delicado proceso en el que se deben respetar y conciliar las características propias del edificio existente y de su entorno, con la incorporación de los nuevos requerimientos espaciales, estructurales o en este caso ambientales, que de esta manera asegurarán su refuncionalización y por consiguiente su conservación. Es un punto de inflexión importante frente a esa arquitectura de la modernidad que en su momento se fue cargando de contenidos cada vez más reactivos contra toda manifestación de conservadurismo formal. Origen de la consabida imposibilidad natural de hacer una arquitectura moderna integrada a contextos históricos, ya que su naturaleza se tenía que presentar como contrapuesta frente a ellos. En contraste, la posición de Bermúdez resulta antagónica y su trabajo se muestra muy efectivo al momento de intervenir contextos urbanos consolidados, como el campus de la Universidad de los Andes, situación que se explica por la aplicación juiciosa de las consideraciones técnicas, de uso y lugar que incorpora dentro del proceso de cada proyecto.
Con la determinación de conservar el inmueble, se tomó la decisión de mantener su apariencia exterior, adosándole un volumen circular semienterrado sobre el costado norte, en el que situó la nueva biblioteca. La biblioteca es de estantería abierta, con un mezanine y se ilumina cenitalmente. En la cubierta de esta situó un “techo verde”, que logra mimetizar con éxito la intervención, al tiempo que se integra y complementa el volumen existente.

















