Ficha Técnica y Memoria del Proyecto
Jefe de diseño: Daniel Bermúdez, Antonio Bermúdez (F1), Ramón Bermúdez (F2)
Equipo de diseño: Santiago Salazar, Sergio Jiménez, Juan Camilo Ortegón, Luis Ángel Rivera, Paula Sopó, Silvia Rueda, Laura Dorado, Paola Castañeda..
Cálculo Estructural: Soic Ingenieros Civiles Ltda.
Sistema Constructivo y prefabricado: Incol Ltda. Y Forsa Formaletas
Diseño Sostenible: Bioclimática – Arq. Jorge Ramírez
Diseño Eléctrico: Grupo SM&A
Ventilación Mecánica: A. Gamboa Ingeniería
Presupuesto y programación: Asinter Ingenieros LTDA
Diseño Hidráulico y Sanitario: I.H.G S.A Ingeniería Hidráulica
Diseño Paisajístico: Diego Bermúdez
Renders: Cinco Arquitectos
La idea de la muerte ha sufrido un desalojo de su significado espiritual y los cementerios se han vuelto, en cierta medida, lugares tabú, funcionales y protocolarios. Para el diseño de este proyecto se considera que el cementerio contemporáneo debe darle un vuelco a esta idea estéril de la muerte para transformarse en un lugar de conmemoración de la vida, que atraiga la visita constante, no solo de los familiares, sino también de paseantes, turistas, viajantes, excursionistas y peregrinos.
El lote resulta ideal para este objetivo. Un terreno escarpado, en el valle del río Teusacá, enfrentado a una montaña grandiosa en su forma y recubierta por una reserva forestal magnífica, que asegura la conservación del paisaje que adquiere una importancia trascendental en el proyecto desde dos puntos de vista. Primero, las vistas se vuelven un eje articulador del diseño acompañando el valor simbólico de la arquitectura.
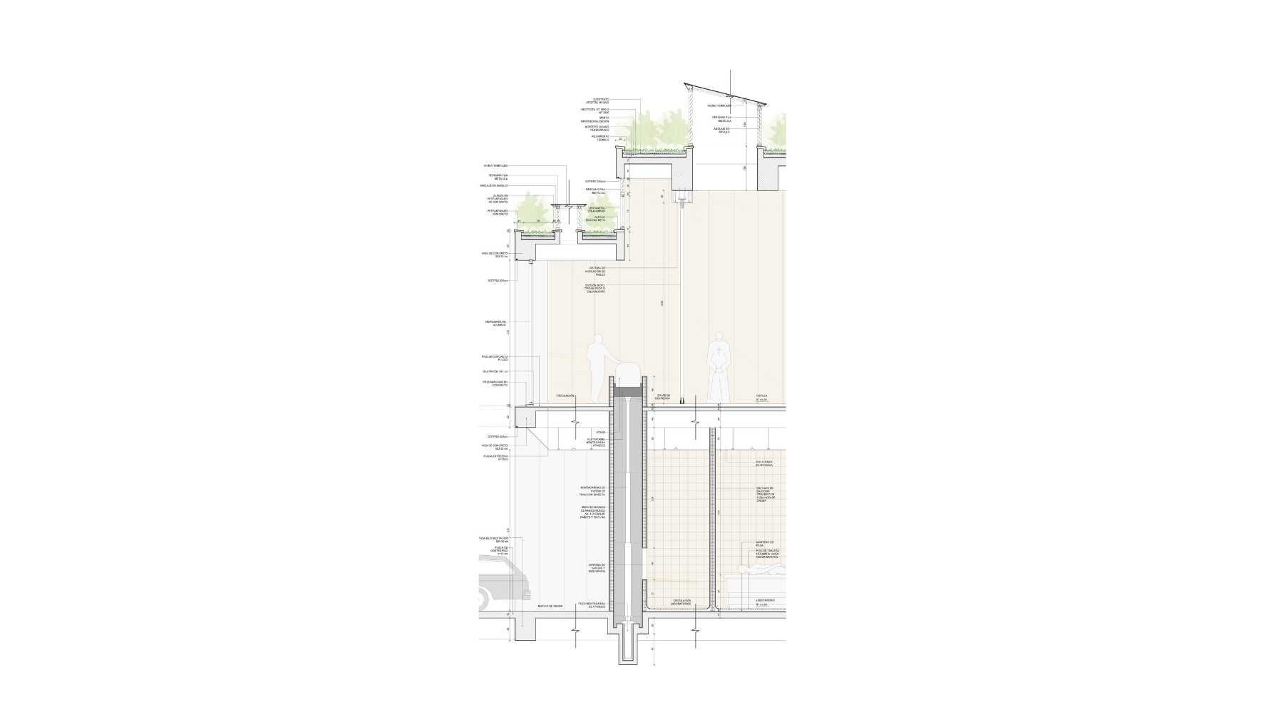
Se proponen edificios compactos, de gran tamaño y gran valor simbólico. Primero, en la parte alta del lote, cercano a la carretera y a los accesos, se localiza el edificio de servicios que, muy eficiente en su funcionamiento, cubre lo anterior al rito y el rito fúnebre en sí. La capilla, las salas de despedida y las salas de velación son espacios flexibles que, a través de un sistema tecnológico de descensores para cajones, se conectan con un espacio moderno e ideal para la tanatopraxia, los laboratorios y los hornos crematorios con sus sistemas mecánicos. Estas especificaciones son necesarias para un proyecto funerario de esta envergadura.
La otra parte del proyecto arquitectónico está conformada por las 18.000 bóvedas que se agrupan en varios volúmenes separados que responden a las fases de construcción requeridas y que están bien integrados y articulados con la topografía, garantizando espacios monumentales de conmemoración y recorridos paisajísticos, tanto por encima como por debajo de sus cubiertas.
La concentración del programa en estos volúmenes compactos, permite un gran espacio para la restauración del bosque nativo, con la localización de los cinco mil lotes funerarios. Entre los árboles aparecen senderos y recorridos de gran valor ecológico.
El complejo funerario es uno y varios monumentos al mismo tiempo: un anfiteatro griego que exalta el paisaje como telón de fondo, un obelisco que orienta el espacio y un hito para una sociedad, un mausoleo que rememora la vida y dignifica la muerte y un parque natural que incita a la visita, a la conciencia ecológica, al disfrute del paisaje y conmemora la muerte a través de la vida.
















