Ficha Técnica y Memoria del Proyecto
Jefe de diseño: Daniel Bermúdez, Ramón Bermúdez
Equipo de diseño: Santiago Salazar, Sergio Jiménez, Juan Camilo Ortegón, Luis Ángel Rivera, Paula Sopó, Silvia Rueda, Laura Dorado.
Cálculo Estructural: PYP Proyectos
Presupuesto y programación: Asinter Ingenieros LTDA
Asesoramiento Teatral: ARUP – Jaume Soler
Diseño Paisajístico: Diego Bermúdez
Renders: Cinco Arquitectos.
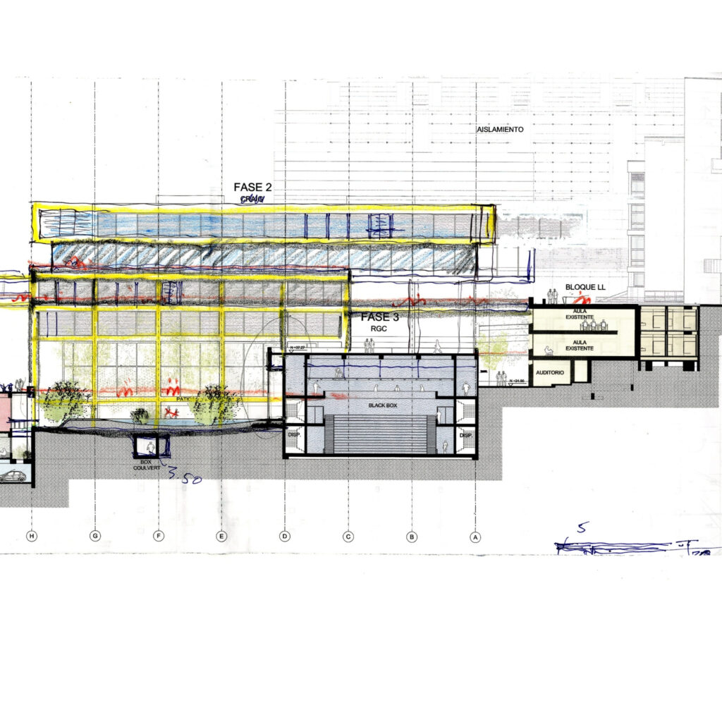
Para hacer evidente los valores actuales del campus, el proyecto propone la construcción de varios bloques legibles como aislados e independientes. Es así como las aulas de fase I, el CRAI, la plazoleta de comidas y las aulas de fase II, el Black box, y finalmente las oficinas de fase III corresponden cada uno a un volumen claramente identificable.
Con el mismo fin, el proyecto propone múltiples conexiones peatonales y funcionales en todos los sentidos, que generan a su vez, espacios de variadas proporciones y jerarquías. Estos espacios son para circular, pero también para estar, intercambiar, aprender y permitirán que el usuario escoja el recorrido que más le convenga y los puntos de circulación vertical serán del campus y no de los edificios.
Adicionalmente el elemento verde, mediante el gran jardín central recogedor de agua que proponemos se vuelve un espacio estructurante también, repitiendo la relación con las zonas verdes del resto del campus central.
El CRAI será, mediante las arcadas de doble altura que lo circundan, una gran vitrina donde la esencia de lo universitario será visible desde la cuidad. El gran acceso que se conformará con la escalera Lleras desde la calle 19 acercará a la ciudad al teatro o Black Box que se construirá en la etapa III solucionando así el acceso a esta etapa mediterránea.














