Ficha Técnica y Memoria del Proyecto
Jefe de Diseño: Daniel Bermúdez Samper
Equipo de diseño: John Oscar Pinzón, Evelyn Delgado, Ricardo Schoonewolff, Rodrigo Dávila, Stan Van der Maas, Ramón Bermúdez.
Cálculo Estructural: Hernán Sandoval Arteaga y Cía. Ltda.
Estudio de suelos: Ing. Luís Fernando Orozco
Proyecto eléctrico y de datos: SM&A, Jaime Sánchez
Instalación hidráulica y sanitaria: Ing. Álvaro Tapias
Proyecto bioclimático: Arquitectura y Bioclimática, Jorge Ramírez
Presupuesto y programación: PAYC Ltda.
Proyecto acústico: Akustik’s (EUA)
Diseño de iluminación: MTS, María Teresa Sierra.
Estudio de tráfico vertical: Ing. Rafael Beltrán
Diseño Paisajístico: Arq. Diana Wiesner
Fotografía: Enrique Guzmán
El proyecto de intervención comprende el diseño del Centro Cultural y Biblioteca Pública Julio Mario Santo Domingo y del parque recreativo San José de Bavaria de 6 hectáreas de extensión. Con su terminación se consolida un nuevo epicentro recreativo y cultural para la localidad de Suba y para la ciudad.
La edificación propuesta al interior del parque, retrocede 40 metros frente a la vía a razón de los eucaliptos existentes. En este retroceso se desarrollan espacios públicos, vegetados y pavimentados con colores y texturas variables, así como la escalinata de tránsito y estancia.
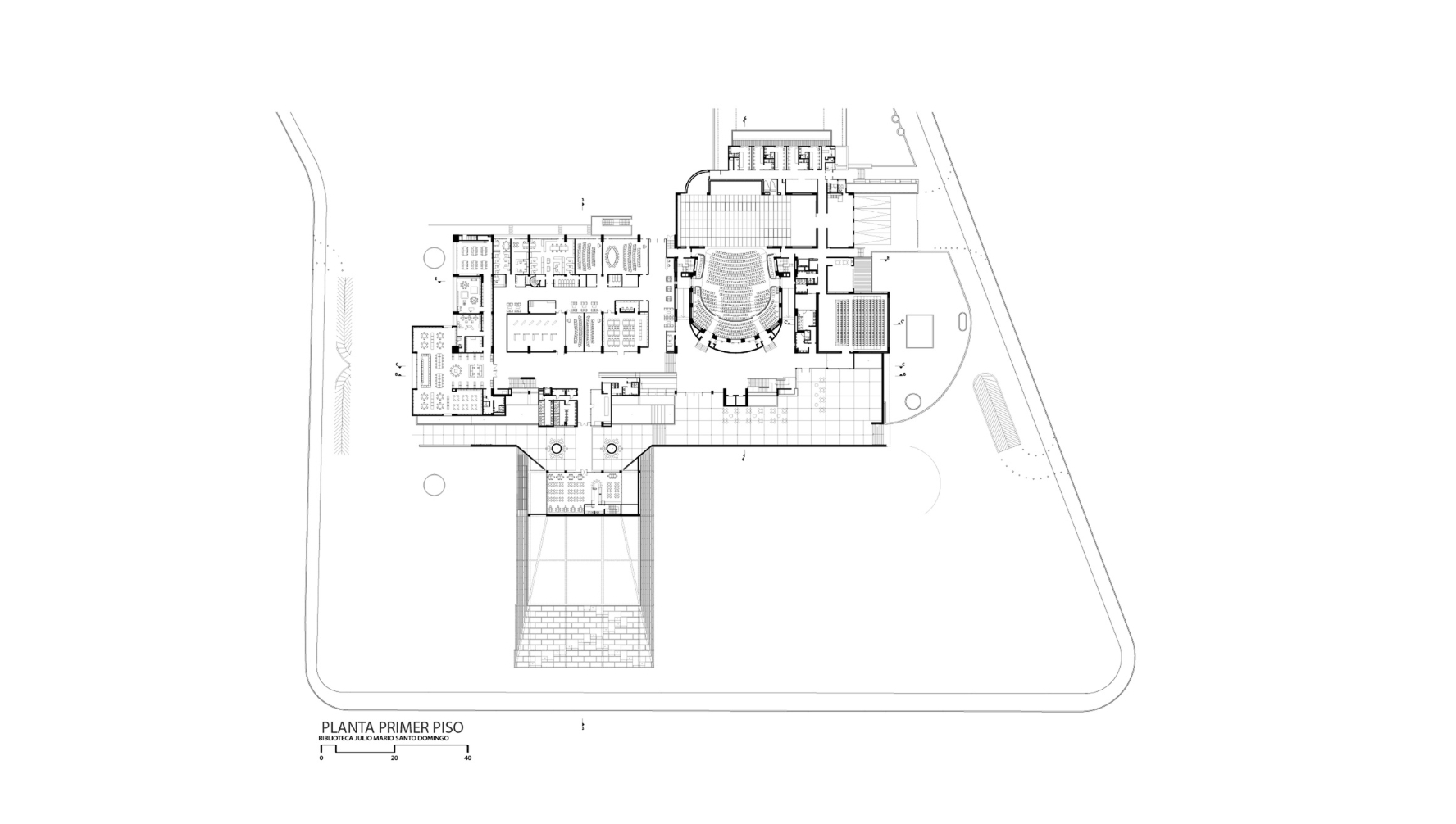
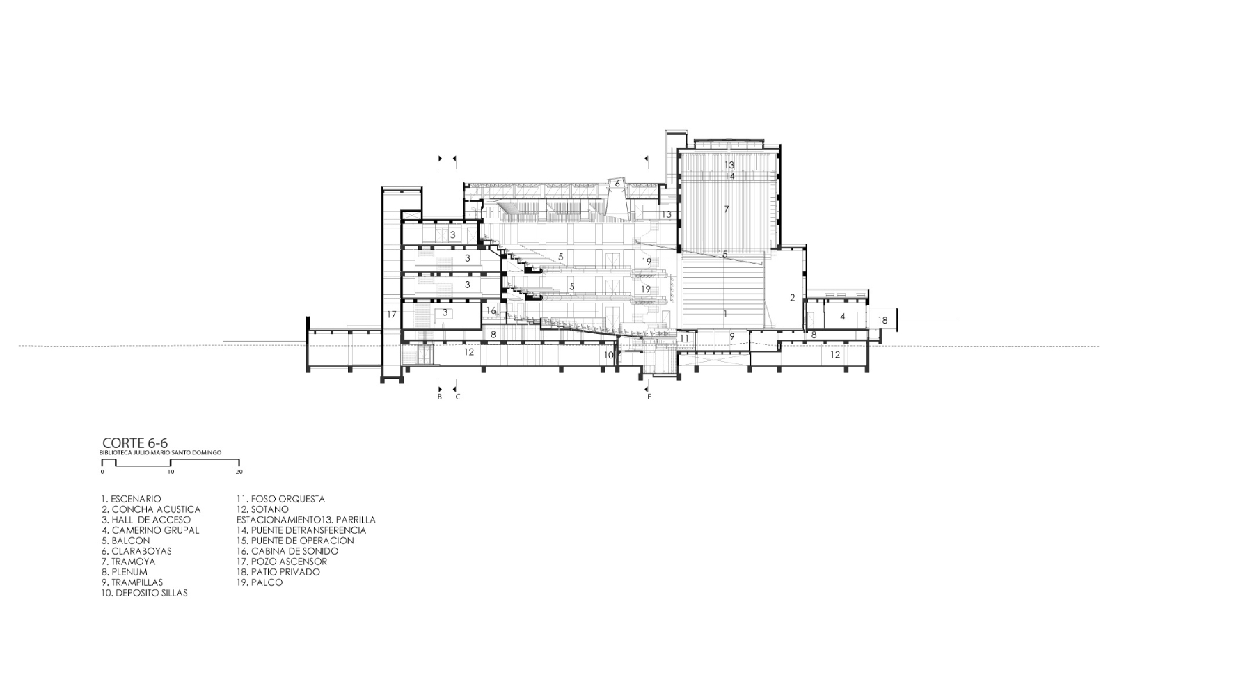
El Centro Cultural, donación de la familia Santo Domingo, alberga dos actividades principales dispuestas a los costados de un vestíbulo de gran altura, que recoge visuales y sol del norte. A la izquierda del espacio central, anunciada por un guardarropa, se encuentra una megabiblioteca del sistema Bibliored. A la derecha, anunciados por una taquilla, se encuentran dos teatros, uno de carácter experimental para 400 personas y otro de usos múltiples y acústica variable con la posibilidad de representar opera para 1300 personas. En el sótano se encuentran 320 puestos de estacionamiento y servicios técnicos.
Los materiales del conjunto son estables. El concreto claro refleja la luz de Bogotá y no requiere mantenimiento. Pero esta misma luminosidad del agregado caliza abujardado impide su uso en escenarios. Los teatros aquí propuestos se diferencian materialmente de resto del conjunto cultural por un agregado rojizo, presente en el concreto a la vista tanto en interiores como en exteriores. Del trabajo cuidadoso con las formaletas resultan múltiples innovaciones estéticas y funcionales. Los huecos dejados por la formaleta en los muros, por ejemplo, se convierten en finos agujeros para el tránsito de la luz gracias a la inserción de pequeños tubos de ensayo de dos tapas.
En el conjunto construido y especialmente en las salas de lectura, el tratamiento de la luz es fundamental. Gracias a la separación deliberada entre placas y muros es posible prever que los rayos de sol caigan sobre circulaciones y no sobre estancias. En la sala de lectura infantil una claraboya de carácter escultural ofrece planos blancos a 45 grados que reflejan la luz solar evitando su contacto directo.
En los teatros el despliegue técnico y espacial es sorprendente. Coherente con una larga tradición escénica, el auditorio de planta de herradura mantiene una distancia máxima de 22 metros entre los espectadores y los actores, medida que permite reconocer los gestos. Si el gran escenario brinda todas las posibilidades creativas a los directores teatrales, el espacio tras escena esta manejado con la racionalidad propia de un área para la producción.






















