Ficha Técnica y Memoria del Proyecto
Jefe de diseño: Daniel Bermúdez
Equipo de diseño: John Oscar Pinzón, Stan Van der Maas, Jorge Pardo, Mónica Hernández, Fredy Fortich
Calculo estructural:Â PCA, Armando Palomino
Diseño Acústico: ADT Daniel Duplat
AsesorÃa Teatral:Â Akustiks, Jaume Soler.
Sostenibilidad: Arquitectura & Bioclimática, Jorge RamÃrez
Diseño Eléctrico y Datos: SM&A, Jaime Sánchez
Texto:Â Alberto Escovar
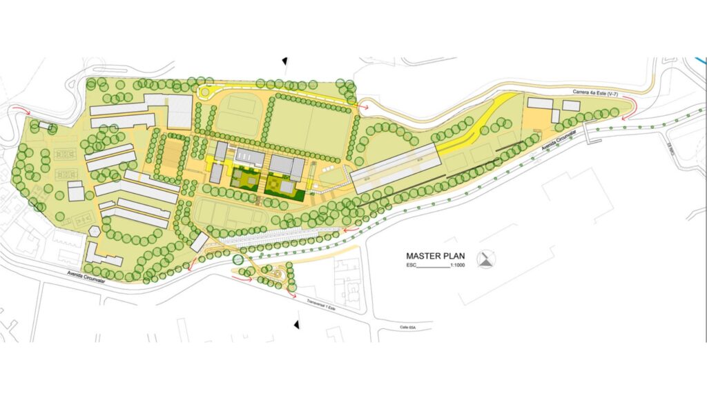
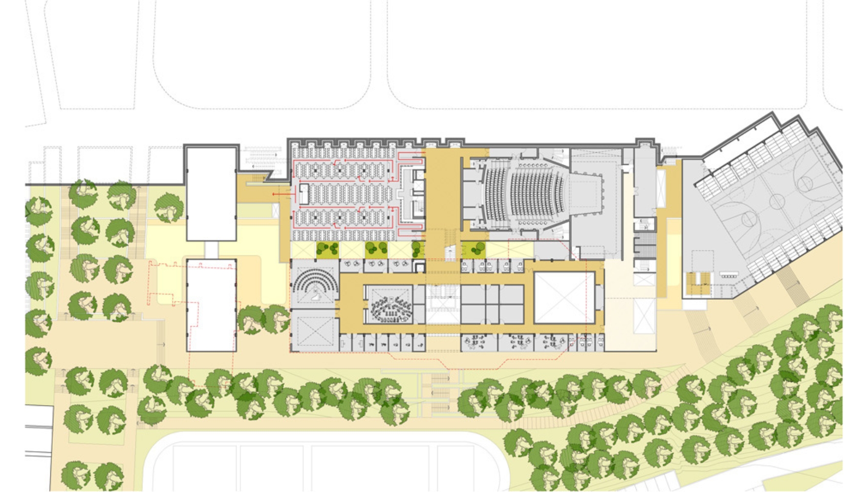
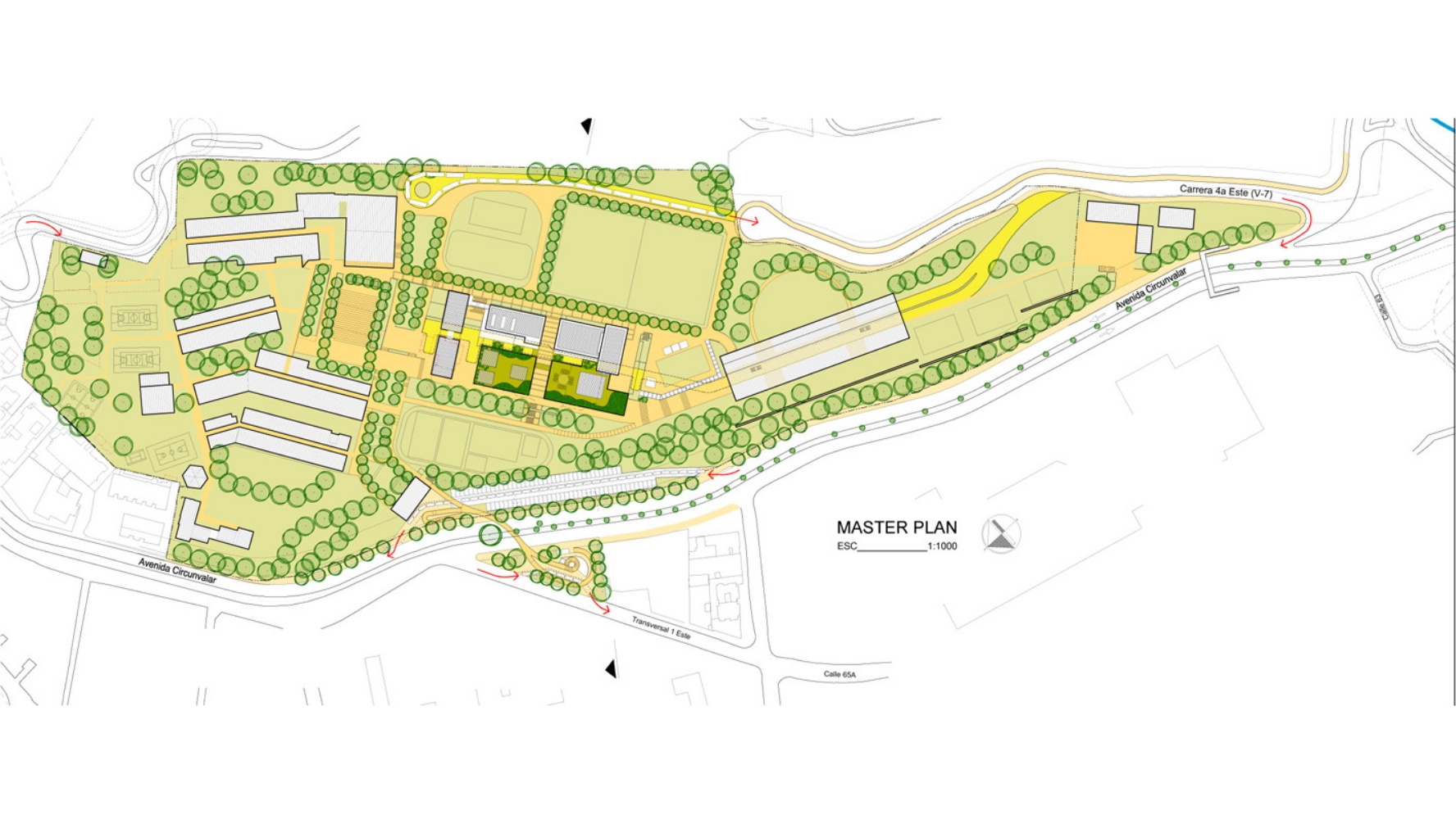
En base al plan maestro desarrollado para el Colegio Nueva Granada, Bermúdez Arquitectos propone un edificio en todo el centro del campus que sirva de corazón al conjunto albergando el centro de artes escénicas y la cafeterÃa. En el nivel de acceso se presenta una vÃa vehicular de servicios que recorre linealmente el complejo distribuyendo a cada dependencia. En el nivel principal se presentan el comedor y el teatro en la parte posterior y los salones en la parte delantera contando con grandes visuales y buena iluminación natural. Sobre estos salones se encuentra una terraza verde y sobre el teatro y comedor, a nivel con las áreas deportivas se encuentra una segunda y más pequeña cafeterÃa.Â
Â
El proyecto saca un notable partido de los desniveles del terreno ganando espacio para actividades nuevas y restituyendo las zonas verdes perdidas con terrazas vegetadas y espacios abiertos en relación con el paisaje. Llama la atención, al entrar en dialogo con edificaciones realizadas por Guillermo Bermúdez, el empleo de ladrillo para entablar un diálogo armonioso con lo preexistente. Este gran complejo edilicio sobre los cerros orientales combina los conocimientos adquiridos en ámbitos escolares y culturales y se presenta como un nuevo encuentro propositivo salvando un importante espacio temporal entre Daniel y Guillermo Bermúdez.


















