Ficha Técnica y Memoria del Proyecto
Diseño: Bermúdez Arquitectos + Estudio Herreros. Daniel Bermúdez, Juan Herreros, Jens Richter.
Directores del proyecto: Ramón Bermúdez, Stan van der Maas y Gonzalo Rivas
Equipo de diseño: Carmen Antón (eH), Juan Carlos Ardila (BA), David Barbosa (BA), Jaime Barrera (BA), Julián Beltrán (BA), Camilo Brito (BA), David Caballero (BA), Laura Dorado (BA), María Franco (eH), Raúl García (eH), David Gómez (BA), Airam González (eH), Iván Guerrero (eH), Andrés Gutiérrez (BA), Sergio Jiménez (BA), Víctor Lacima (eH), Juan Fernando Martínez (BA), Margarita Martínez (eH), Ana María Noriega (BA), Juan Camilo Ortegón (BA), Mª Ángeles Peñalver (eH), Abraham Piñate (eH), Juan Reyes (BA), María Ríus (eH), Alberto Roa (BA), Luis Ángel Rivera (BA), Beatriz Salinas (eH), Paula Sopó (BA), Martha Sosa Dias (eH), Catalina Venegas (BA)
Cálculo Estructural: Consorcio P&P y CNI (Col), BOMA (Esp).
Estudio de suelos: LFO Ingenieros de Suelos
Instalación hidráulica y sanitaria: Álvaro Tapias & Cía.
Proyecto Eléctrico y Datos: SM&A
Proyecto Ventilación Mecánica: Álvaro Tapias & Cía.
Presupuesto y programación: Payc Ltda.
Proyecto acústico: ADT (Col), Akustiks (USA)
Diseño de iluminación: MTS (Col), ALS (Esp)
Estudio de tráfico vertical: Rafael Beltrán
Asesor Cocinas: Motta & Rodriguez
Diseño Paisajístico: Arquitectura y Paisaje, Diana Wiesner
Gestión Normativa: Trayectoria S.A
Asesor Bioclimática y Sostenibilidad: Arquitectura & Bioclimática (Col), ARUP (Esp)
Imagen: Norberto Chaves (Esp)
Señalización: Fotoletras (Col), Joaquín Gallego (Esp)
Funcionamiento: Conventional Wisdom (USA)
Seguridad y automatización: AGR y Cia.
Topografía: ATS Ingeniería Geomática
Gerencia Integral: PAYC ltda
Fotografía: Javier Callejas, Federico Cairoli, Andrés Valbuena, Enrique Guzmán.
Texto: Juan Herreros
Localizado en un lote de casi 2 hectáreas en el centro geográfico de Bogotá, a mitad de camino entre el centro histórico (a 3km.) y el aeropuerto internacional (a 8km.), el centro de convenciones AGORA BOGOTA se convierte en una de las piezas más importantes del complejo ferial y de eventos de la ciudad, CORFERIAS. El proyecto se instala en un entorno urbano en consolidación que destaca por su gran déficit de espacio público de calidad. Optando por liberar la mayor cantidad de superficie de suelo, el volumen edificado tiende a la verticalidad. Con 5 niveles principales sobre el nivel de la calle y dos sótanos, el edificio ocupa en planta un cuadrado de 81×81 mt y llega hasta los 49 mt de altura.
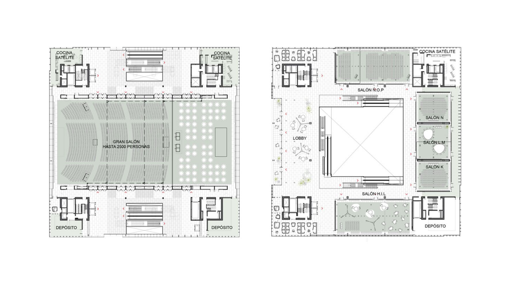
De los 64.883 m2 construidos, los 33.722 m2 que están debajo del nivel de la calle están consagrados a los 1.055 puestos de parqueo, las zonas técnicas, de mantenimiento, de almacenamiento, de carga y descarga, así como una cocina con capacidad para dar 2.500 comidas. Los 31.161 m2 restantes que están sobre el nivel de la calle albergan la totalidad de los programas públicos, compuestos de salones y vestíbulos con capacidad para albergar eventos de 2.500 personas así como los espacios de servicio directamente relacionados a ellos (baños, satélites de cocina y depósitos de muebles). El gran salón en el último piso puede además alojar un evento único de hasta 4.000 personas, para conciertos, conferencias o reuniones fuera del rango habitual de uso esperado para un centro de convenciones (un evento de hasta 2500 personas o dos eventos simultáneos de máximo 1.000 y 1.500 personas)
El sistema de espacio público que propone el proyecto responde de forma específica a cada una de las adyacencias con la intención de enriquecer el espacio público urbano de la zona, en evidente déficit. La plaza que discurre paralela a la avenida de la Esperanza se convierte en el acceso principal al edificio, pero también en el recinto representativo de encuentro entre convenciones (Ágora Bogotá), ferias (Corferias) y la ciudad. El parque que da sobre la carrera 40, propone un espacio profusamente arborizado y diseñado como un lugar de encuentro y contemplación. En el costado sur del lote se encuentra la zona de accesos vehiculares y de carga en relación directa con el actual edificio de parqueaderos de Corferias, se convierte en la franja de servicios de carga y descarga del edificio. Finalmente, la plaza situada en el costado oriental del lote funciona como explanada donde se pueden hacer eventos al aire libre relacionados con el centro de convenciones y la feria.
























