Ficha Técnica y Memoria del Proyecto
Jefe de diseño: Ramón Bermúdez
Equipo de diseño:Juan Camilo Ortegón, Laura Dorado, Santiago Salazar.
AsesorÃa urbanÃstica:Â Trayectoria S.A. Zoila de Vita
Renders:Santiago Salazar.
El Proceso de Paz del Gobierno colombiano con la guerrilla de las FARC se prolongó por más 5 años durante los cuales se crearon un sinnúmero de documentos, archivos y videos que merecen ser conservados en un mismo lugar. Además, con el otorgamiento del premio Nobel de Paz a Juan Manuel Santos se configura una ocasión extraordinaria para impulsar un lugar para conservar la Memoria de todo el proceso.
La visión del proyecto en estas circunstancias es la de crear un centro de investigaciones para la paz que conserve toda la historia del proceso pero que también incentive los estudios sobre Paz en diferentes lugares, contextos y momentos históricos.
En asocio con la escuela de Gobierno de la Universidad de Los Andes y Presidencia se desarrolló un estudio preliminar para evaluar la viabilidad del proyecto.
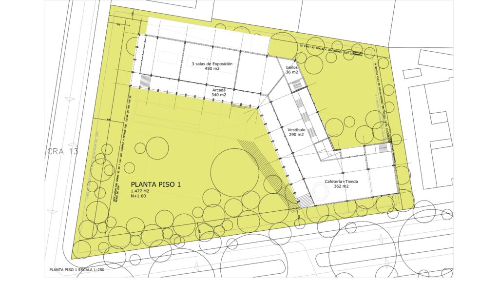
El sitio escogido para el proyecto fue un fantástico lote que pertenecÃa al gobierno en uno de los barrios más elegantes de la ciudad. Allà se propuso un edificio en forma de L abierta que conformaba las fachadas de los edificios vecinos y abrazaba un generoso espacio público en la esquina de una manzana tradicionalmente muy cerrada. Un pórtico de dos niveles de carácter solemne e intemporalidad funcionaba como fondo de la plaza y como transición con el espacio interior.
El proyecto incluÃa un centro de interpretación de la Paz, el archivo completo de los procesos de Paz con una amplia zona para consultas e investigadores especializados, un auditorio para albergar diferentes eventos relacionados, además de un restaurante, una tienda y las oficinas del centro.





















