Ficha Técnica y Memoria del Proyecto
Jefe de Diseño: Ramón Bermúdez (B|A), Denis Calle Facal (ACM)
Diseño de Zonas Exteriores: Diego BermúdezÂ
Equipo de Diseño: Paula Sopó, Carlos SantamarÃa, Tatihana González, Cristina Garcia Nadal, Andrés Felipe Solano, Daniela Almansa, Valeria Gómez Lara, Ricardo Ariza, Juan David Herrera, Santiago Izquierdo, Almudena Sanchez (ACM)
Cálculo Estructural: P&P. Ing. Carlos Palomino.
Sistemas Hidrosanitario, contraincendio y Gas:Â PLINCO. Ing. Carlos Javier Parrado
Sistema Eléctrico: SM&A. Ing. Jaime Sánchez
Seguridad Humana:Â AGR. Arq. Jaime Andres GarcÃa
Tráfico Vertical: Ing. Rafael Beltrán
Especificaciones y Presupuesto:Â Arq. Marcela Forero
Norma urbana:Â Zoila de VitaÂ
AsesorÃa vial: T&T IngenierÃa SAS. Deisy Guzmán
Espacios concatenados
La asociación del estudio de arquitectura madrileño Amann–Cánovas–Maruri con los bogotanos Bermúdez Arquitectos asegura un equilibrio entre una reflexión internacional en materia de vivienda y un conocimiento intenso de los recursos y capacidades locales, con el apoyo de un extenso grupo interdisciplinar de profesionales urbanistas, arquitectos y paisajistas.
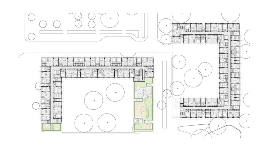
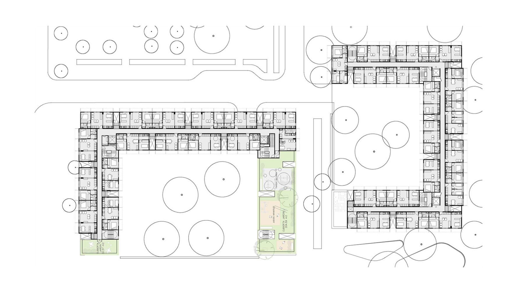
La propuesta promueve la creación de una ciudad abierta y activa en primer piso. Al construir una calle peatonal pasante, una plaza activa y una esquina de encuentro ciudadano estamos propiciando la conexión con los barrios aledaños y la convivencia entre las diferentes comunidades que allà habitarán. El proyecto apuesta por un tejido urbano de grano fino que, a diferencia de los desarrollos convencionales de VIS basados en grandes manzanas impermeables al contexto, promulga una escala urbana más parecida a la de los barrios tradicionales, donde la proporción y tamaño de los recintos urbanos están adaptados al peatón.
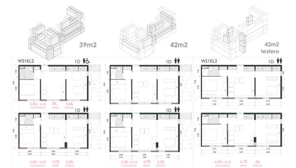
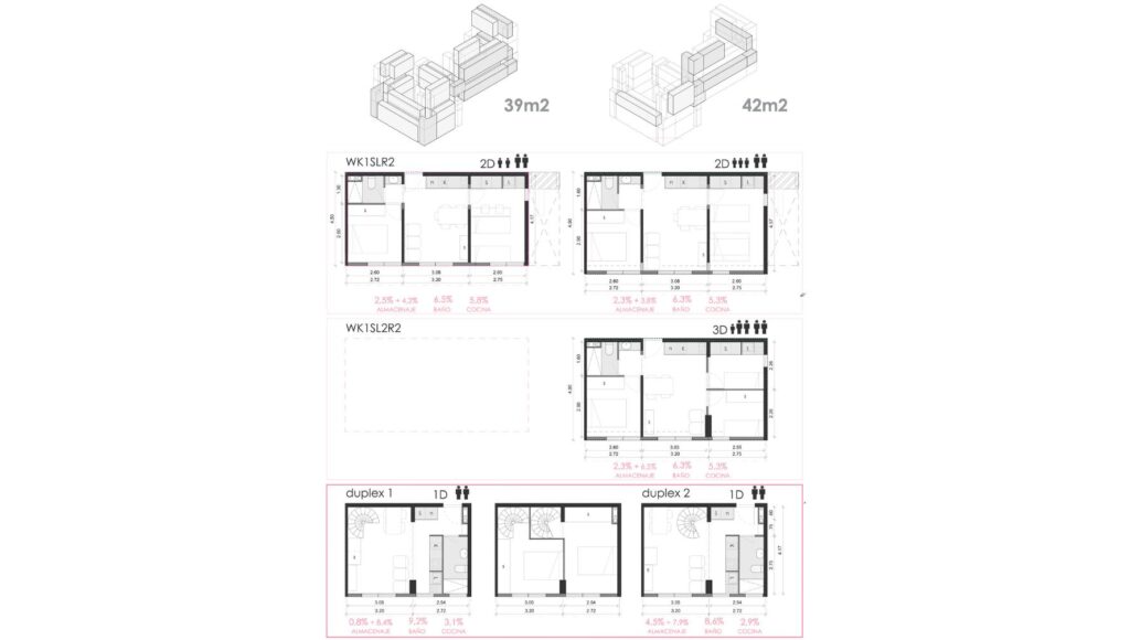
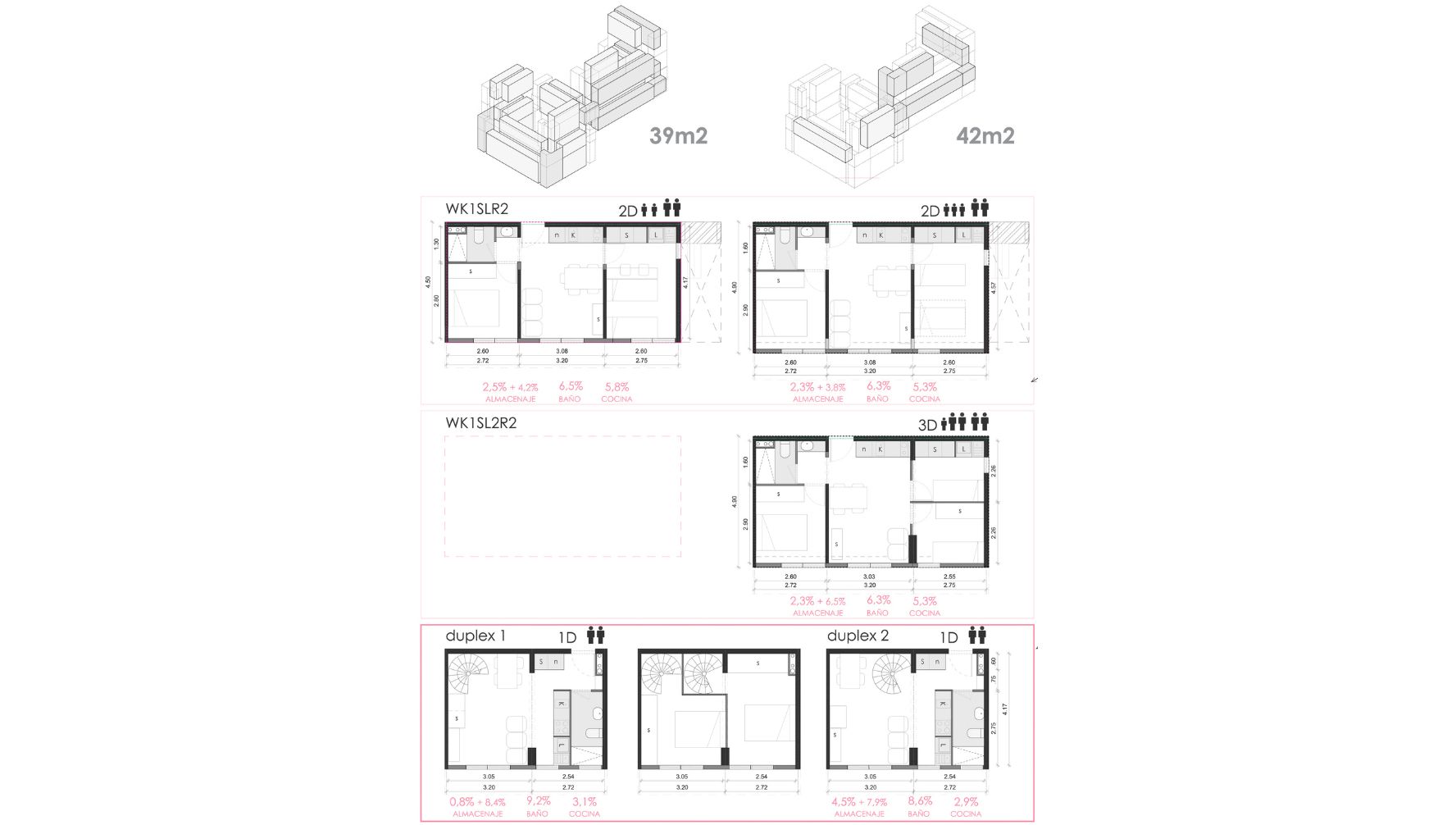
Emplazamos 4 edificios-manzana de aproximadamente 250 viviendas cada uno y alturas variadas que se ajustan a las proporciones del espacio público y promueven el uso de cubiertas verdes habitables como comunales exteriores. Las viviendas, organizadas a través de un muro equipado que alberga todos los servicios (baños, cocina, ropas y almacenaje), están pensadas para otorgar la mayor flexibilidad de uso posible y una gran adaptabilidad en el tiempo para asimilar las transformaciones familiares de los usuarios.

















