Ficha Técnica y Memoria del Proyecto
Jefe de diseño: Daniel Bermúdez Samper
Equipo de diseño: Arq. Jaime Romero, Arq. Javier Ruiz, Arq. Andrés Gómez
Cálculo Estructural: Ing. Hernán Sandoval
Estudio de suelos: Sáenz Ruiz Cadena y Cía.
Instalación hidráulica y sanitaria: Ing. Rafael Hernández
Instalación eléctrica y datos: SM&A Ing. Jaime Sánchez
Presupuesto y programación: PAYC S.A. Pérez Arciniegas Y Cía.
Constructora: Civilia Ltda. (Constructor estructura) Arq. Urbano Ripoll (Constructor acabados)
Gerencia de Proyecto: E. Pombo y Cia.
Fotografía: Germán Téllez, Enrique Guzmán
Ubicado en el extremo nororiental del centro de Bogotá, el edificio de Posgrados de la Universidad Jorge Tadeo Lozano es la construcción más representativa del Campus, símbolo de la entrada al centro de la ciudad por el norte y puerta de la institución.
El edificio potencializa y responde a las diversas condiciones del entorno, a las necesidades de la Universidad en su proyección a futuro frente a la ciudad, y a las características espaciales y funcionales de las actividades que alberga.
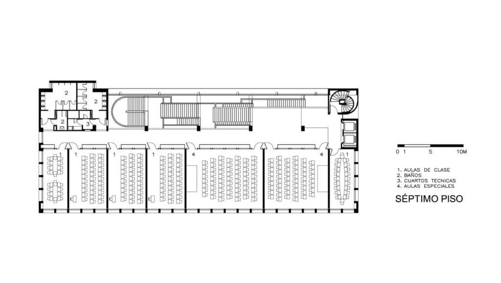
Para dar respuesta a un programa que contemplaba oficinas, servicios, cafetería y aulas en un lote reducido, fue necesario acudir a los 8 pisos de altura permitidos por la norma. Puesto que la cafetería y las oficinas debían –por razones funcionales– ocupar los tres primeros niveles, resultaba fundamental resolver adecuadamente el flujo de un gran número de estudiantes hasta los 5 pisos siguientes. Por este argumento programático, por la convicción de que circular, comunicar y aprender van de la mano, y por analogía con las dinámicas propias de la movilidad urbana; la fachada norte, completamente acristalada, expone a Bogotá el acontecimiento más relevante del proyecto: un recorrido compuesto por escaleras y balcones que cubre todo lo alto y largo de la edificación y que, en la medida en que asciende, va disminuyendo en dimensión.
Por contraste con esta gran fachada acristalada, ligera y abierta, que enmarca la gran dinámica de la circulación tanto interior como exterior; la fachada sur, que encara el centro tradicional, y paramenta aulas y oficinas, está dotada de una gran serenidad y sobriedad, lograda mediante una retícula homogénea que alterna ventanas rectangulares con la estructura portante en concreto visto de color blanco. En el primer nivel de esta fachada de composición clásica, una galería porticada abierta a la plaza a la manera de una stoa, sirve de preámbulo cubierto al vestíbulo de la edificación.
Este pequeño proyecto resulta interesante dentro de la obra de Bermúdez Arquitectos porque deja de nuevo en evidencia una característica de su propuesta arquitectónica que busca integrarse y complementar el entorno, no a partir de una propuesta conservacionista o “museística”, sino muy por el contrario, con un claro interés por dotar a las edificaciones preexistentes de nuevas herramientas que les permitan seguir cumpliendo su función según las necesidades del momento. Este es un delicado proceso en el que se deben respetar y conciliar las características propias del edificio existente y de su entorno, con la incorporación de los nuevos requerimientos espaciales, estructurales o en este caso ambientales, que de esta manera asegurarán su refuncionalización y por consiguiente su conservación. Es un punto de inflexión importante frente a esa arquitectura de la modernidad que en su momento se fue cargando de contenidos cada vez más reactivos contra toda manifestación de conservadurismo formal. Origen de la consabida imposibilidad natural de hacer una arquitectura moderna integrada a contextos históricos, ya que su naturaleza se tenía que presentar como contrapuesta frente a ellos. En contraste, la posición de Bermúdez resulta antagónica y su trabajo se muestra muy efectivo al momento de intervenir contextos urbanos consolidados, como el campus de la Universidad de los Andes, situación que se explica por la aplicación juiciosa de las consideraciones técnicas, de uso y lugar que incorpora dentro del proceso de cada proyecto.
Con la determinación de conservar el inmueble, se tomó la decisión de mantener su apariencia exterior, adosándole un volumen circular semienterrado sobre el costado norte, en el que situó la nueva biblioteca. La biblioteca es de estantería abierta, con un mezanine y se ilumina cenitalmente. En la cubierta de esta situó un “techo verde”, que logra mimetizar con éxito la intervención, al tiempo que se integra y complementa el volumen existente.













