Ficha Técnica y Memoria del Proyecto
Jefe de diseño: Daniel Bermúdez
Equipo de diseño: David Barbosa, David Gómez, Juan Carlos Ardila, Jaime Barrera, Alberto Roa, Ana MarÃa Noriega.
Renders:Â Cinco Arquitectos.
El edificio debe tener la capacidad de hacer presente las comunidades que aloja; en este sentido, esta construcción hará presente frente a toda la universidad los valores de las artes, la arquitectura y el diseño. El edificio construye el espacio de la representación, donde las diferentes comunidades ven reflejados sus valores: optimismo, respeto, compartir experiencias y conocimientos, creatividad, dialogo, desarrollo individual y colectivo.
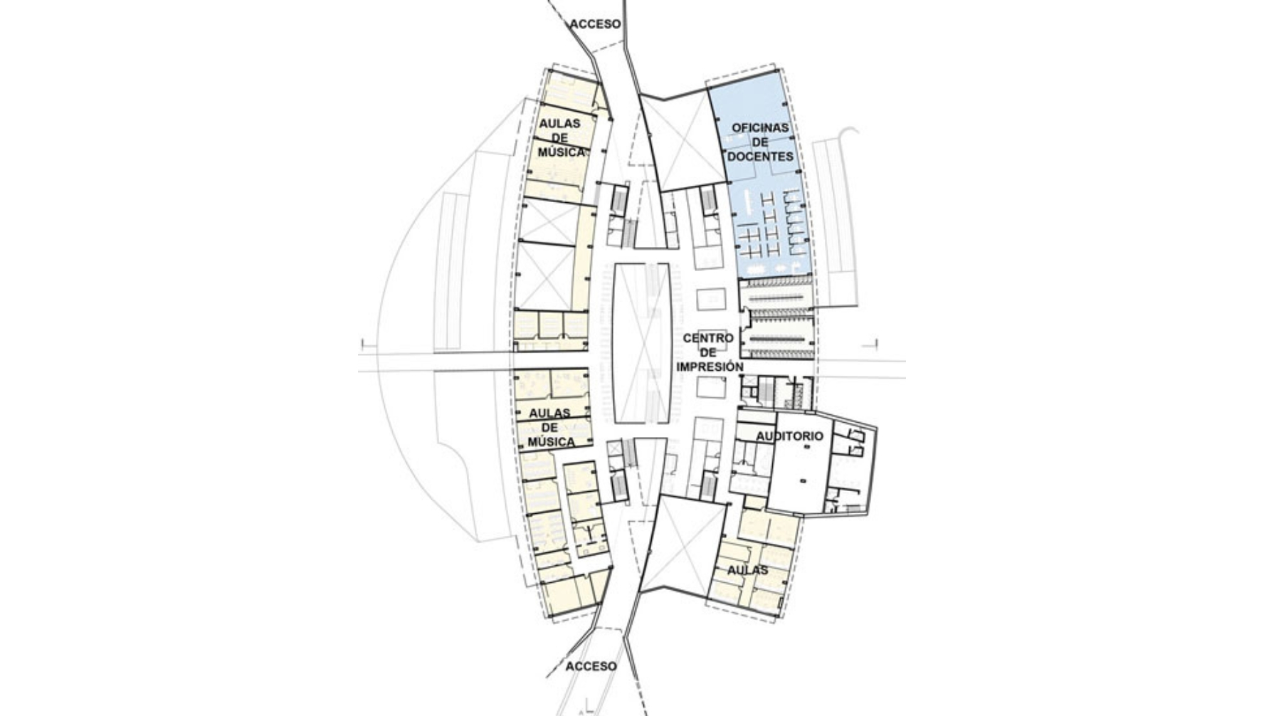
El edificio conecta las sendas peatonales existentes para darle continuidad a la circulación del campus, de esta forma el edificio se presenta permeable visualmente y peatonalmente en diversas formas. Privilegia el uso del espacio abierto para los peatones en lugar de los vehÃculos; en un campus donde predomina el espacio libre, tan escaso en la ciudad.
Tipológicamente el edificio evoca un teatro; sus balcones, un gran escenario y la cubierta, como una gran tramoya: el espacio de la representación. El encuentro de las diferentes comunidades ocurre en el espacio central, la gran terraza y las circulaciones del edificio, se consideran como los espacios que más tienen capacidad para enseñar los valores del arte. Se propone un espacio central el cual puede ser adaptado y modificado por los estudiantes con sus trabajos y montajes; dando como resultado un edificio en construcción permanente, porque atiende la educación como un proceso flexible y de constante cambio.
Técnicamente el edificio presenta una estructura aporticada modulada para permitir la máxima flexibilidad. El espacio central tiene la función de regular la temperatura interior de los espacios, la temperatura de los espacios es también tratada en la orientación de las fachadas siendo la edificación más baja en el oriente para aprovechar la asolación y aumentar las temperaturas en horas de la mañana.

















