Ficha Técnica y Memoria del Proyecto
Jefe de diseño: Daniel Bermúdez Samper
Equipo de diseño: Stan van der Maas, David Caballero, Julián Beltrán, David Gómez, Andrés Gutiérrez, Catalina Venegas, Juan Fernando Martínez, Luis Ángel Rivera
Cálculo Estructural: P&P Proyectos S.A.S.
Estudio de suelos: E Y R Espinosa y Restrepo S.A.
Instalación hidráulica y sanitaria: Ing. Álvaro Tapias
Presupuesto y programación: Payc Ltda.
Proyecto acústico: ADT Diseño & Tecnología
Diseño de iluminación: Maria Teresa Sierra Consultoría de Iluminación y Cia. S.A.S.
Estudio de tráfico vertical: Ing. Rafael Beltrán
Informe de valoración patrimonial: Arq. Carlos Niño Murcia
Fotografía: Enrique Guzmán
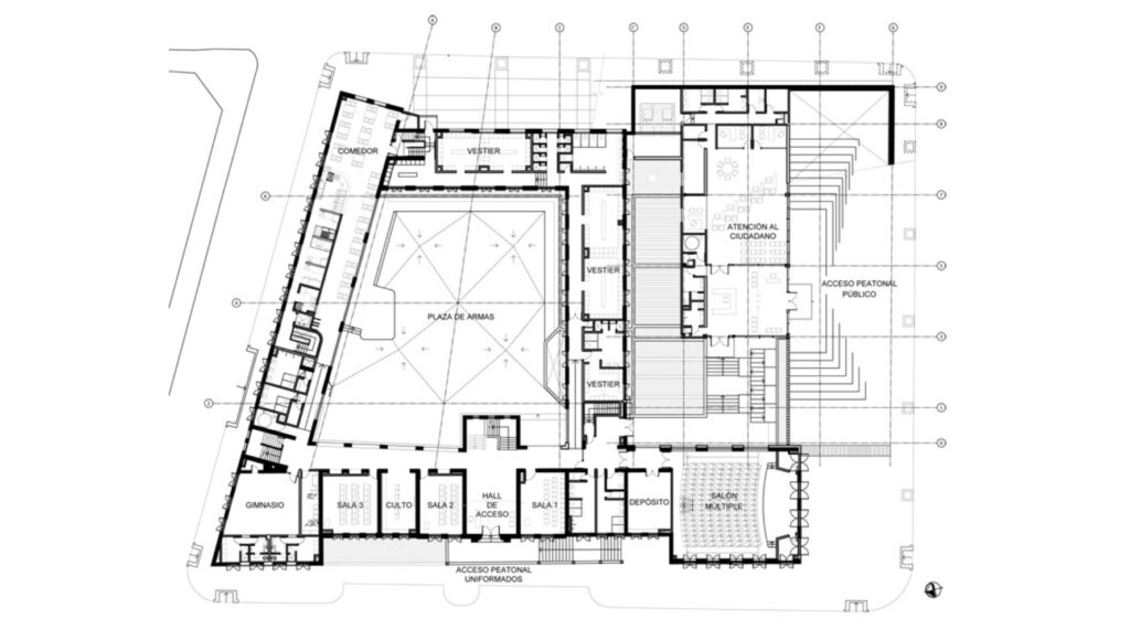
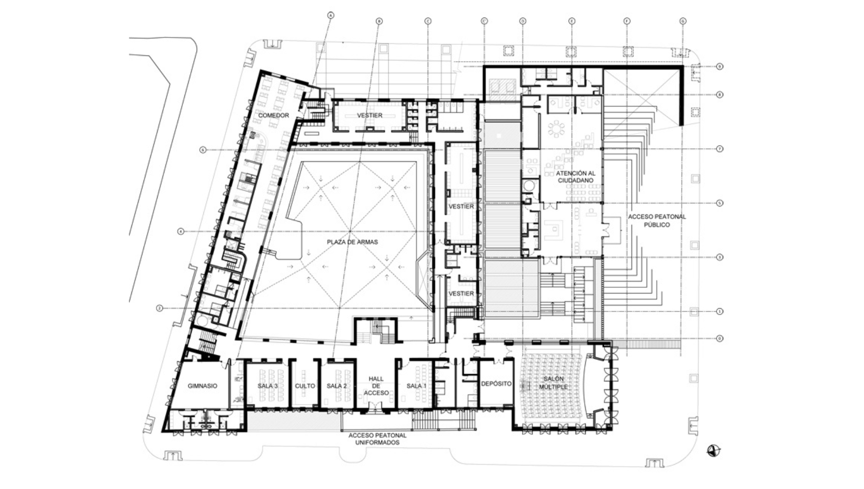
La estación, catalogada como Bien de Interés Cultural, es un ejemplo de los edificios destinados a las instituciones militares y de policía realizadas por el Ministerio de Obras Públicas durante la primera mitad del S.XX. Delimitado entre carreras 4ª y 5ª y calles 29 y 30, fue proyectado por Rocha, Santander & Cia en 1940. El proyecto original se organizaba en torno a un claustro de dos pisos de altura con una fachada de acceso de tres pisos. A través de los años ha conservado su tipo y forma arquitectónica.
En años posteriores se añadieron construcciones en el costado sur, organizadas alrededor de dos patios secundarios, llenos de añadidos de baja calidad. Luego de un análisis exhaustivo se concluyó que sólo se debía conservar y restaurar la parte original.
La intervención abarca la restauración integral del edificio original, con una reorganización total de sus espacios para albergar las funciones de una estación de policía moderna; el reforzamiento estructural del edificio; la ampliación en varios niveles del sótano para localizar la totalidad de los vehículos de servicio, liberando calles y espacio público colindante; la demolición de las adiciones posteriores para generar un área de cesión al espacio público y construir un nuevo edificio de atención al ciudadano. Asimismo, comprende la reconstrucción de los andenes existentes, conserva e incorpora la arborización e integra espacialmente la nueva plazoleta de acceso a la Estación sobre la calle 29 al espacio público existente.











