Ficha Técnica y Memoria del Proyecto
Jefe de diseño: Daniel Bermúdez Samper
Equipo de diseño: John Oscar Pinzón, Alejandra Carmona, Juan Camilo Brito, Andrés Gutiérrez, Jorge Andrés Pardo, Alejandra Novoa, Stan van der Maas, Diego Soto, Jaime Barrera, Luis Ángel Rivera
Cálculo Estructural: CNI Ingenieros Consultores Ltda.
Estudio de suelos: Alfonso Uribe S. y Cia. S.A.
Instalación hidráulica y sanitaria: Hidroobras
Presupuesto y programación: Payc Ltda.
Proyecto acústico: ADT Diseño & Tecnología
Diseño de iluminación: Arq. Carmenza Henao Londoño
Estudio de tráfico vertical: Ing. Rafael Beltrán
Diseño Paisajístico: Arq. Diana Wiesner
Fotografía: Enrique Guzmán
El lugar de intervención en el campus de la Universidad de Los Andes es un espacio representativo de la historia económica del país. Aquí se implantaron los primeros molinos del S. XVI, industrias de comienzos del S. XIX y un equipamiento de salud del S.XX, el Campito de San José.
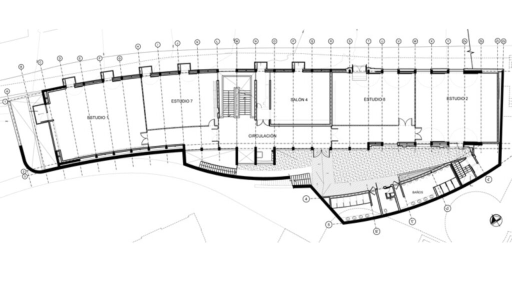
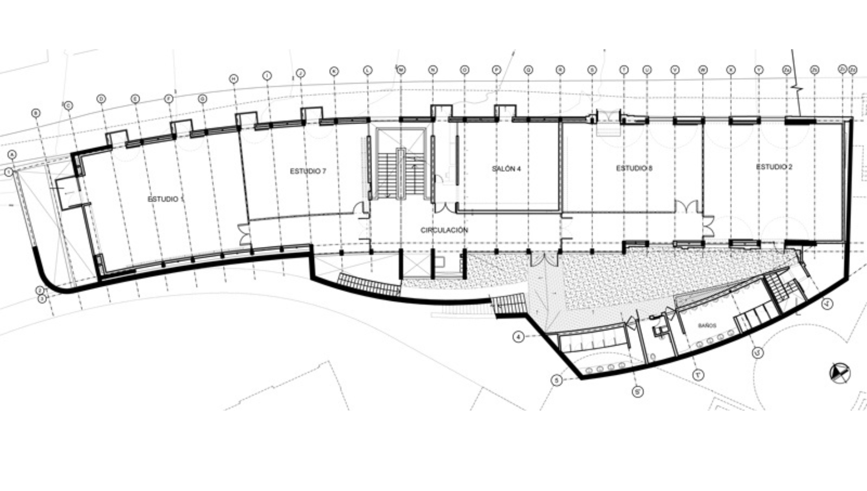
Para albergar aulas, talleres y estudios para los departamentos de artes y diseño industrial, el proyecto interviene dos Bloques existentes de la Universidad. La intervención sobre el Bloque R-213 busca la conservación de la fachada norte y el portal original de entrada al Campito San José sobre la calle 19A y la recuperación de las fachadas este y sur.
El existente Bloque S1 es demolido y la nueva construcción continúa la volumetría del bloque R, mediante una estructura en concreto ocre que da estabilidad al conjunto. Se integra espacial y funcionalmente con el Bloque R y utiliza un lenguaje con proporciones y materiales similares a los existentes. Un sistema de tráfico vertical sirve a todos los pisos que se conectan con los diferentes niveles del contexto inmediato.
Hacia el interior del campus, la fuerte inclinación del terreno se maneja con un patio de acceso, trayendo luz y ventilación a los pisos inferiores, una zona de servicios sanitarios bajo la plazoleta Richard. Frente a la fachada urbana de la calle 19A, la construcción paramenta el eje y genera mayor actividad sobre este tramo de la calle. Volumétricamente, consolida la calle y define la perspectiva urbana del lugar.













