Ficha Técnica y Memoria del Proyecto
Jefe de Diseño: Daniel Bermúdez Samper
Equipo de Diseño: David Caballero, Julián Beltrán, Paula Sopó, Santiago Salazar, Luis Ángel Rivera
Cálculo Estructural: CNI Ingenieros Consultores Ltda., Nicolás Parra.
Instalación hidráulica y sanitaria: Hidroobras
Presupuesto y programación: Payc Ltda.
Proyecto acústico: ADT Diseño & Tecnología
Diseño de iluminación: María Teresa Sierra Consultoría de Iluminación y Cia. S.A.S.
Estudio de tráfico vertical: Ing. Rafael Beltrán
Diseño Paisajístico: Arq. Diana Wiesner
Fotografía: Enrique Guzmán.
Texto: Rafael Villazón.
Algunas reflexiones sobre un edificio que enseña:
En el proceso de diseño del edificio C de la Universidad de los Andes, Bermúdez Arquitectos ha intentado acercarse a la noción del “edificio que puede enseñar”. Son muchas las lecciones que un edificio puede dar, el problema es que normalmente estos conocimientos son invisibles para los estudiantes. Una de las intenciones de este edificio es que pueda enseñarle a los estudiantes algunas lecciones claves sobre los sistemas técnicos que componen un edificio. HACER VISIBLE LO INVISIBLE. Enseñar (que significa dar signo, dar significado) supone que se debe mostrar y explicar lo que se quiere que estudiante aprenda.
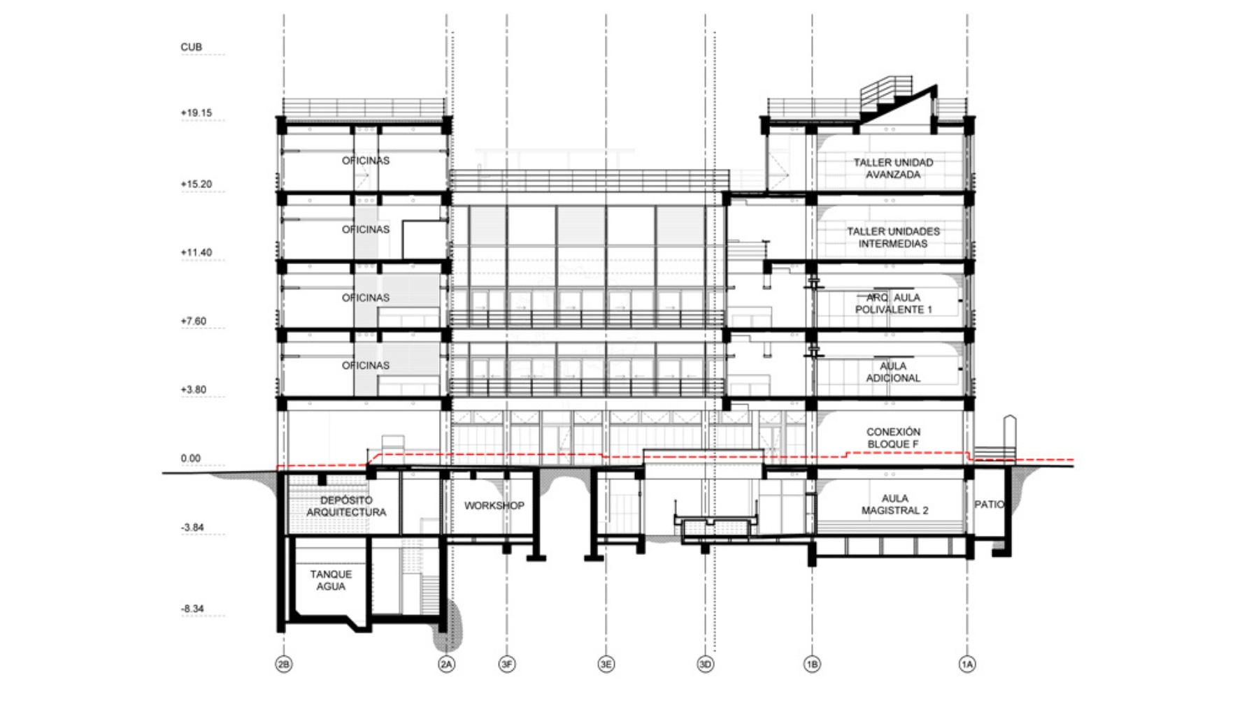
La nueva Facultad de Arquitectura está ubicada en la parte central del campus y cumple un papel relevante en la conexión tanto vertical (occidente-oriente) como horizontal (sur-norte) del campus: Es un conector en diferentes niveles de la topografía que busca replicar las relaciones y espacios abiertos que son característicos en el campus. Para esto conecta los diferentes niveles topográficos y permite la continuidad de las circulaciones existentes proponiendo la unión entre los espacios abiertos y conexiones que generan los edificios tradicionales del campus con la eficiencia de los grandes bloques desarrollados durante los últimos años.
El proyecto se fundamenta en 4 principios: El principio pedagógico, porque busca reflejar los elementos esenciales de la práctica de la enseñanza de la Arquitectura y el diseño. El principio Integrador, porque promueve la interacción entre los estudiantes de esta facultad, con el resto de la universidad y genera espacios específicos para la generación de comunidad entre los mismos integrantes de la facultad. La Flexibilidad, al promover diversos usos de sus espacios educativos a partir de la incorporación de elementos móviles y mobiliario que promueve este valor. EL principio Orgánico, porque integra variables ambientales, elementos pre-existentes en el paisaje y componentes espaciales presentes en la memoria colectiva de la institución.
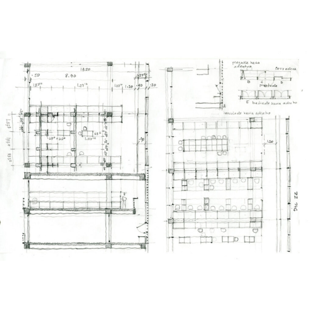
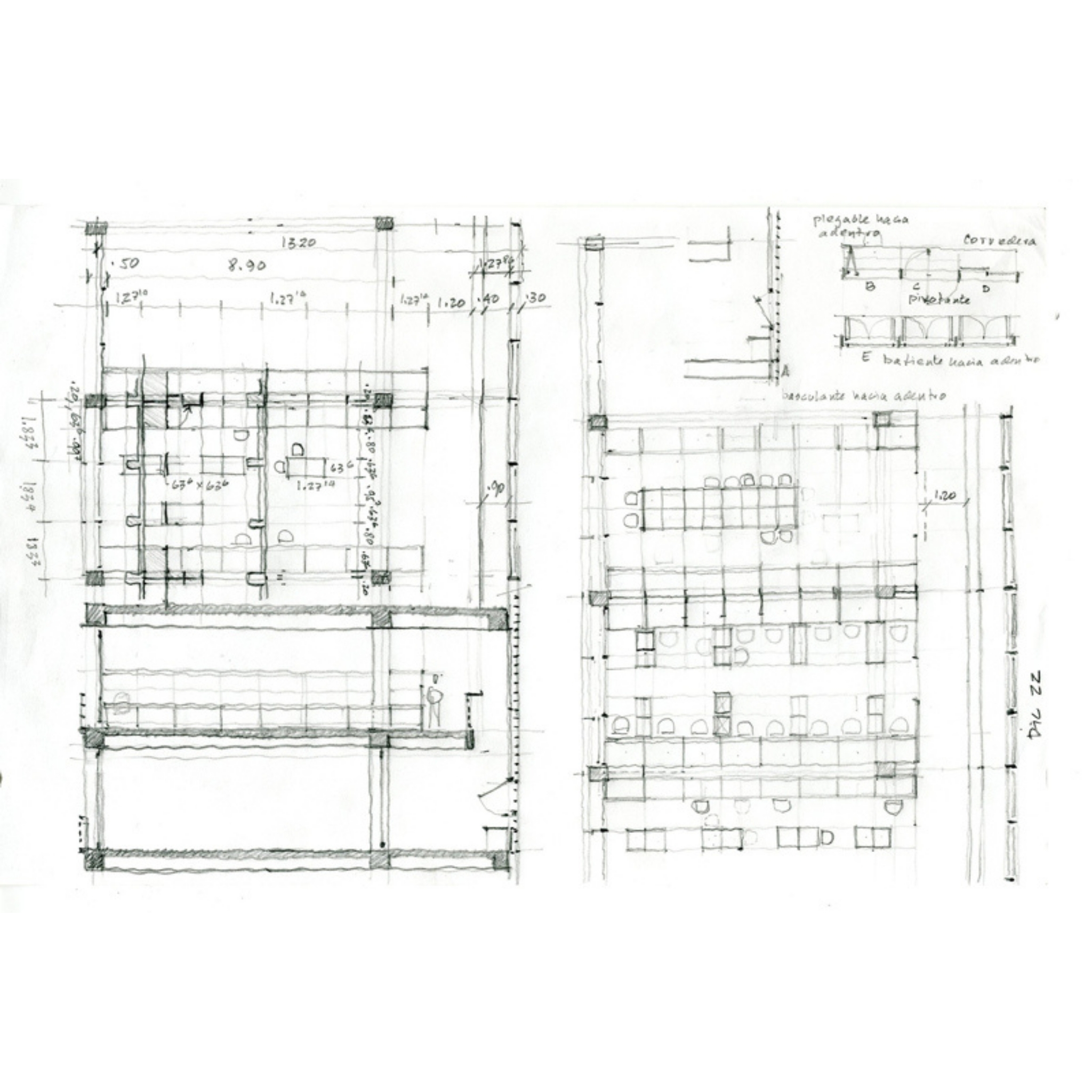
El patio central, espacio representativo y de encuentro de la facultad, es un espacio de integración que actualmente no existe en el campus. A partir del segundo piso aparecen los espacios pedagógicos especializados para la enseñanza de la arquitectura: Las aulas polivalentes. Son espacios que permiten la aplicación de diversos métodos gracias a su flexibilidad. La circulación es un espacio de trabajo e interacción, que se puede integrar a los salones de clase, gracias al sistema de divisiones móviles. El aula polivalente es un espacio compuesto por seis módulos independiente para trabajo de un profesor de diseño o arquitectura con un grupo de máximo 20 estudiantes. Los dos módulos centrales se pueden integrar para poder impartir clases magistrales a los 100 estudiantes de un mismo Taller de proyectos.
La cubierta es el espacio final de este recorrido. Es un lugar en el que el estudiante se conecta con la ciudad, con el campus, con la presencia de la estructura ecológica principal. Es donde se descansa, se come y en general donde ocurre una parte importante de la vida del edificio y de la facultad. Un auditorio al aire libre, un espacio para aprovecharlo con montajes de los estudiantes de arquitectura y diseño. Un espacio para volver a descubrir el skyline de la ciudad y los cerros.




















