Ficha Técnica y Memoria del Proyecto
Jefe de diseño: Daniel Bermúdez Samper
Equipo de diseño: Jaime Ruiz, Liliana GarcÃa, Carlos J. Murcia, José Fulop, Jaime Romero
Cálculo Estructural: Ruiz Sáenz Cadena
Instalación hidráulica y sanitaria: PLINCO S.A.
Instalación eléctrica y datos: Delta Ltda.
Constructor:Â PAYC S.A.
FotografÃa: Germán Téllez, Enrique Guzmán
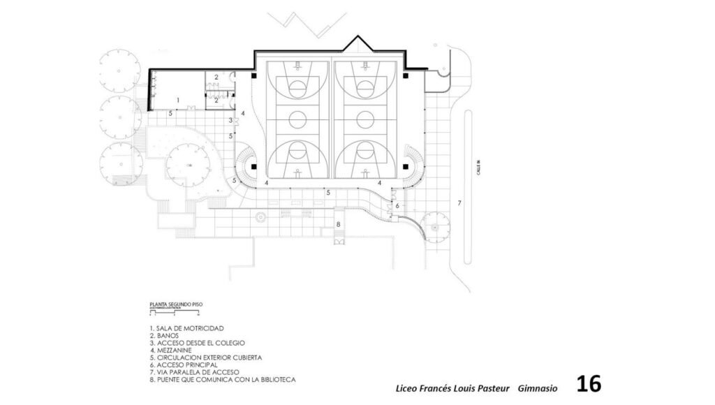
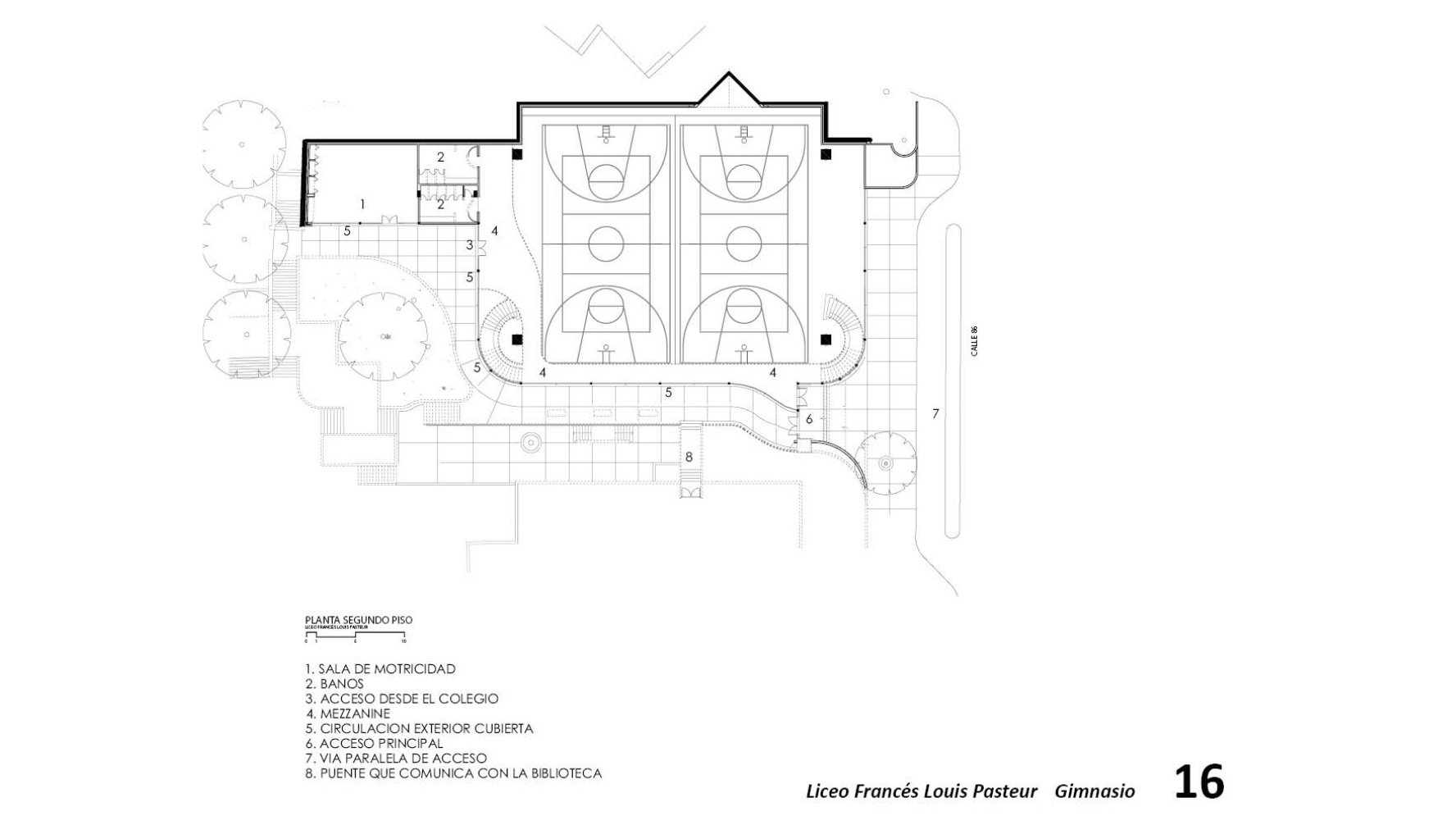
El Liceo Francés Louis Pasteur ocupa, desde 1948, un predio de 1.5 hectáreas en el tradicional barrio residencial de la Cabrera, al nororiente de Bogotá. Pese a que el colegio cuenta hoy con 2000 estudiantes el colegio resolvió, en base al Plan de Ordenamiento de 1989, permanecer en su sede histórica. El Gimnasio es una pieza fundamental de dicho plan. Utiliza de modo eficiente los terrenos inclinados y reducidos del Liceo y contribuye a la construcción de relaciones armónicas entre usos institucionales y residenciales.
Ante este edificio preexistente (proyectado por el arquitecto Fernando MartÃnez Sanabria) se activan estrategias: Al estar parcialmente embebido en el terreno inclinado no interfiere con la orientación solar y con las visuales sobre occidente y puesto que su cubierta es plenamente aprovechada, ofrece una nueva plataforma de juegos para los niños. Como respuesta a los problemas de circulación y congestión vehicular que se presentan, el paramento del edificio retrocede y en su lugar aparece una nueva vÃa paralela. La fachada sobre esta vÃa consta de ventanas corridas y marquesinas que iluminan el espacio interior y que permiten al transeúnte observar las actividades que se realizan. Sobre la esquina sur occidental el paramento se curva y da lugar a un acceso y a un recorrido peatonal cubierto que se extiende por todo el perÃmetro acristalado del Gimnasio y que conduce hacia las diferentes dependencias del Liceo.
Puesto que el edificio se encuentra parcialmente enterrado y su cubierta es aprovechada, el área del terreno ocupada por la construcción es recuperada y devuelta al colegio como zona útil. Pese a que en la cubierta acontecen diversas actividades, la estructura principal que la soporta se presenta ligera, salvando luces de 30 x 18 metros sobre la cancha múltiple. Contra el terreno, el espacio central está delimitado por un muro de contención de 34 metros de longitud por 9 metros de alto, anclado al terreno mediante tirantes cuyas tapas metálicas generan un patrón rÃtmico sobre el muro.












