Ficha Técnica y Memoria del Proyecto
Jefe de Diseño: Ramón Bermúdez, Diego Bermúdez
Diseño de Zonas Exteriores: Diego Bermúdez
Equipo de Diseño: Andrés Solano, Cristina G. Nadal, Tatihana González, Valeria Gómez, Santiago Izquierdo
Diseño Sostenible: Jorge RamÃrez (Bioclimática) Jairo Villegas (Paissano)
Diseño Cocinas: Daniel Motta (Motta&RodrÃguez)
Estructura de Madera:Â Claudia Cuesta (Taller de Ensamble)
Estructura Metálica: Juan José Prada (Matecsa)Â
Lugar
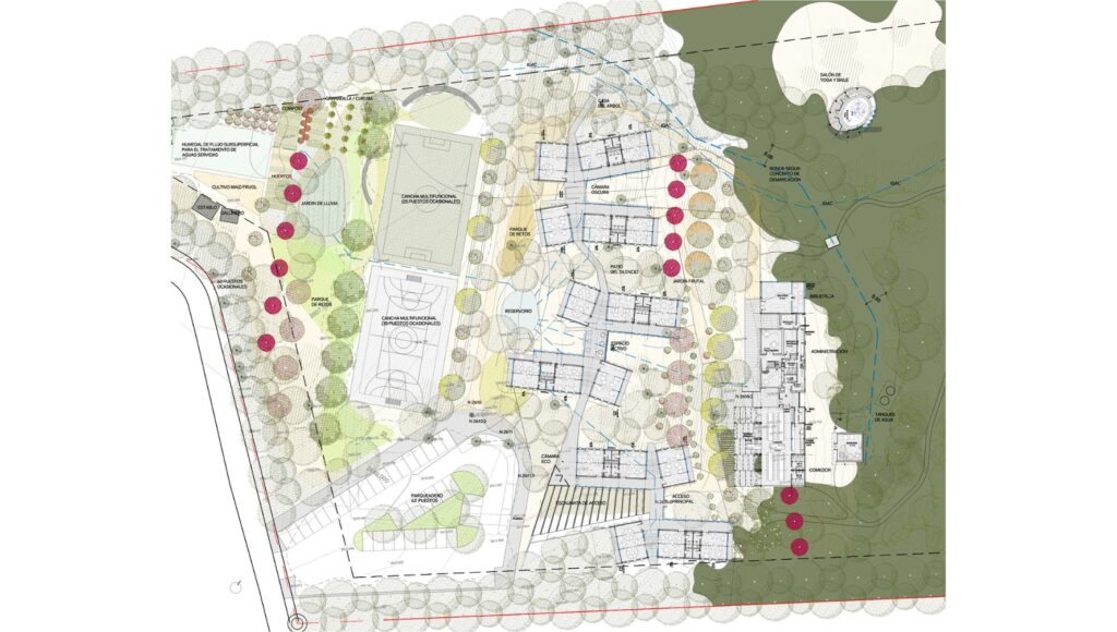
Poder contar con un pedazo de falda de cerro en la sabana de Bogotá es un privilegio para una comunidad de aprendizaje como lo es Kalapa. Con una reserva de proporciones considerables y una zona plana con posibilidad de ser intervenida vemos que liberando la zona plana para la mayor cantidad de usos exteriores y poniendo los edificios en el borde del piedemonte logramos un proyecto que le saca el mejor partido al lugar.
Claros en el bosque
¿Cuál es la forma de recuperar el ecosistema de piedemonte sabanero que hemos arrasado sistemáticamente y que es el responsable de asegurar la conexión biológica entre los cerros y los humedales de la sabana? Proponemos desarrollar Kalapa a través de una lógica de claros, para lograr extender el bosque lo más posible en el lugar restablecer el metabolismo del ecosistema de bosques y planicies inundables de la sabana de Bogotá.
Espacios de aprendizaje
Estamos seguros de que los espacios confortables, térmicamente adaptados a las condiciones del lugar y con buena iluminación y ventilación natural son los lugares más adecuados para potenciar el aprendizaje de los niños. Un espacio confortable es un espacio que incentiva la curiosidad y la innovación. Por esta razón hemos trabajado en conjunto con técnicos especializados en estos temas, que nos han llevado a diseñar todos los espacios teniendo en cuenta las condicionantes medioambientales del lugar para sacarles el mejor provecho posible.
El edificio, el tercer maestro
La forma de construir los edificios y como estos pueden enseñar cómo están hechos es una de las premisas de este proyecto. Proponemos dos tipos de construcción en seco, uno de madera y otro metálico, no porque consideremos que hay que escoger uno sobre el otro, sino porque creemos que utilizando alternativamente uno y otro podemos hacer un proyecto con diversidad de técnicas constructivas que inciden en la conformación del espacio, asà como en la percepción que de estos tienen todos los niños. Los edificios enseñan si damos la posibilidad de que los niños entiendan como están construidos y que se pueda explicar por qué están hechos de esa manera y no de otra.
Construcción en seco, una aproximación sostenible
Como compromiso con el lugar, entendemos que la mejor aproximación técnica es la que menor impacto tenga en el lugar. Los sistemas de construcción en seco antes enunciados permiten hacer edificios muy livianos, eficientes en el uso de los recursos disponibles y de construcción muy sencilla y rápida. De esta manera las etapas de construcción del proyecto pueden solaparse con lo que es realmente importante: La restauración del bosque y la conformación natural del espacio de Kalapa.
Aprovechamiento de los recursos naturales
Desde el reuso total del recurso hÃdrico hasta el aprovechamiento de la radiación solar para generar energÃa o calentar pasivamente los espacios habitables, hasta la cuidadosa selección de especies comestibles que poblarán el nuevo bosque expandido son las estrategias de aprovechamiento consciente de los recursos disponibles.



















