Ficha Técnica y Memoria del Proyecto
Jefe de Diseño: Daniel Bermúdez, Ramón Bermúdez
Diseño de Zonas Exteriores: Diego Bermúdez
Equipo de Diseño: Cristina GarcÃa, Andrés Solano, Daniela Almansa, Paula Sopó, Juliana Gutiérrez, Santiago Izquierdo, Carlos Santamaria, Jaime Barrera, Daniela Chavez
Diseño Sostenible: Jorge RamÃrez (Bioclimática)
Diseño Cocinas: Daniel Motta (Motta&RodrÃguez)
Renders:Â Ricardo Lopez
Implantación
La domesticación del entorno a través de terrazas y chacras propios de la cultura Inca perdura hasta nuestros dÃas como vestigios arqueológicos, pero también como una forma de construir los lugares habitables. A partir de esta idea, nos interesa una interpretación topográfica del lugar como una forma de generar un continuo espacial con el contexto y la historia del lugar. Asà las cosas, nuestra propuesta busca ofrecer el máximo aprovechamiento de las visuales, con un esquema horizontal semienterrado que se mimetizará en la topografÃa, y no será evidente pero si muy atractivo. Esta condición lineal horizontal y abierta hacia las vistas también permite una asoleación adecuada que calentará los espacios importantes del proyecto.
Â
El proyecto
Producto de nuestras visitas al lugar constatamos la existencia de una larga zona de quiebres vegetados de la topografÃa que divide el terreno dispuesto para las construcciones de la zona de la viña. Consideramos que esta marca, visible en la topografÃa, es el lÃmite natural del predio. En consecuencia proponemos modificar el lindero propuesto, tan racional como arbitrario y cambiarlo por esta elocuente marca en el paisaje.
Â
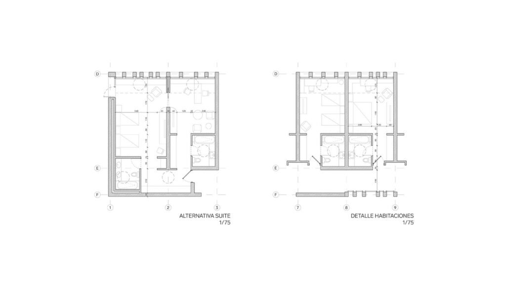
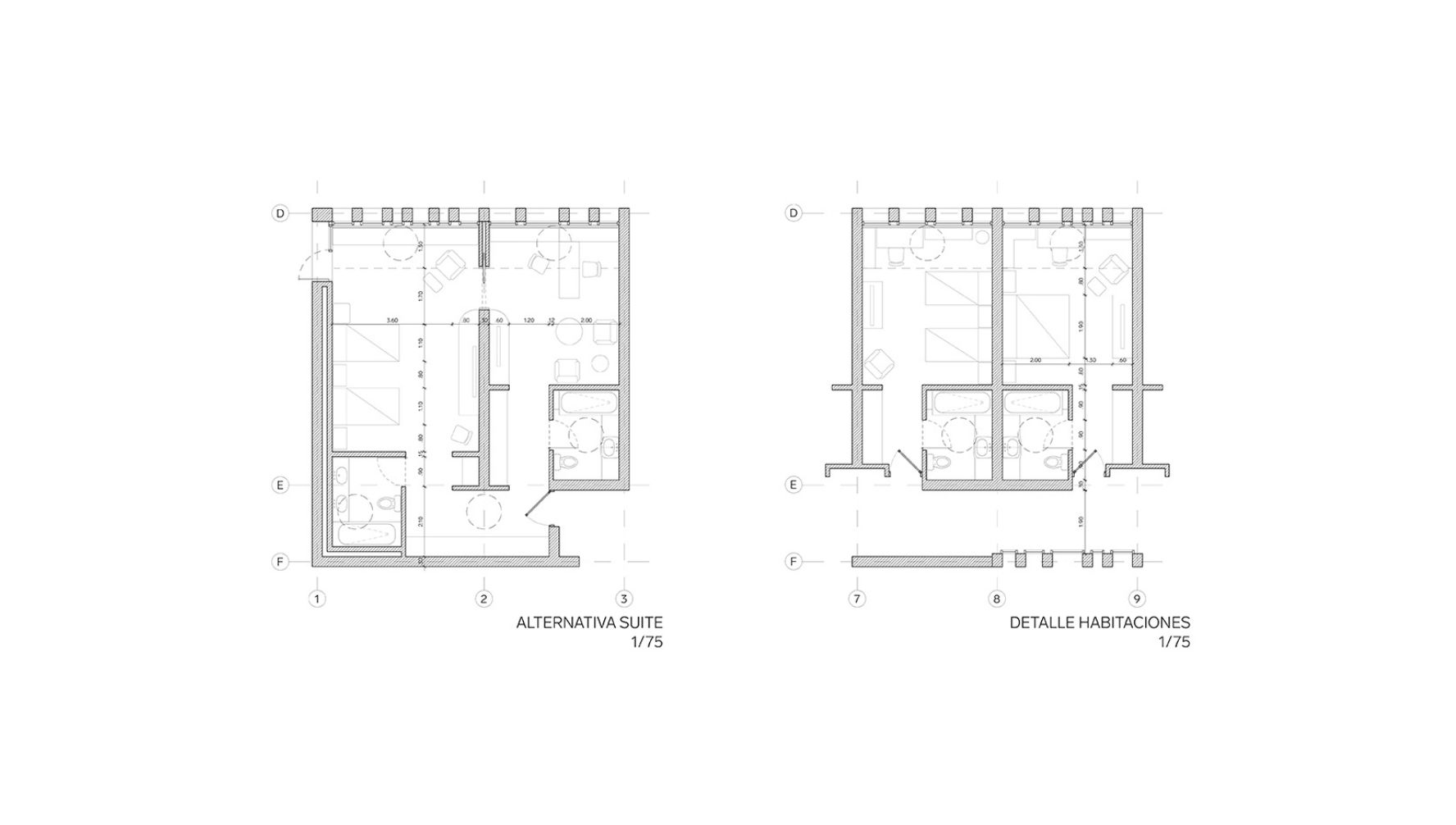
Para el cumplimiento de los objetivos de aterrazamiento, mimetismo y aprovechamiento de las visuales, el edificio se conforma con dos barras de 10.60 m de profundidad y de longitud de 117 y 127 m. Estas están retranqueadas la una sobre la otra y separadas por patios longitudinales. Estos permiten el acceso al exterior, la iluminación y ventilación naturales y la interrelación de las diferentes dependencias del edificio. El material predominante en el proyecto es el concreto y la mamposterÃa, y se construye con materiales y técnicas tradicionales, eficientes y económicas. El proyecto arquitectónico permite modular los edificios de manera óptima y repetitiva, con lo cual el uso del material puede ser optimizado en cuantÃas, encofrado y acabados, lo que permite obtener una alta eficiencia en la construcción de la estructura. Los módulos estructurales tÃpicos, de 4.20m x 7.80m, se apoyan sobre muros en las dos direcciones en planta, que proporcionan la capacidad de carga para fuerzas verticales y horizontales. Para las zonas con luces mayores se utilizan columnas intermedias, que complementan el sistema principal del edificio ante fuerzas sÃsmicas. La cubierta es una losa maciza de 25cm de espesor que está soportada en los ejes de las divisiones entre habitaciones.
Â
Sistema estructural
La estructura principal consiste en un sistema de muros de carga que se aferra con lo estipulado las normas. Los apoyos principales los conforman los muros entre habitaciones, que al combinarse con tabiques perpendiculares proporcionan la rigidez necesaria para fuerzas sÃsmicas en ambas direcciones. Contra la fachada, y como remate de los muros de carga, se plantean columnas yo machones distribuidos según el ritmo de fachada y ventanerÃa propuesto en la arquitectura, de manera que la estructura queda integrada completamente con la arquitectura. El sistema propuesto es uniforme y garantiza la continuidad en la trayectoria de cargas y en la rigidez desde la base hasta la cubierta.













