Ficha Técnica y Memoria del Proyecto
Jefe de diseño: Daniel Bermúdez Samper
Instalación hidráulica y sanitaria: PLINCO S.A.
Diseño de cableado estructurado: AGR Ltda.
Instalación eléctrica y datos: SM&A Ltda., Jaime Sánchez.
Constructor: PAYC S.A.
Diseño Acústico: Construcciones Acústicas Ltda.
Fotografía: Germán Téllez, Enrique Guzmán
Texto: Alberto Escovar
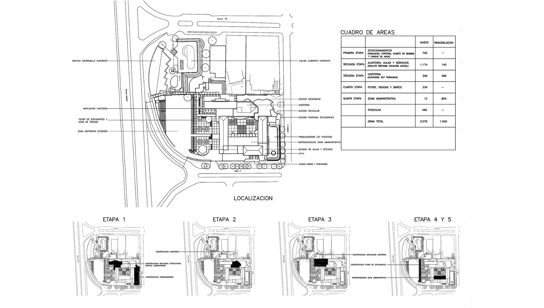
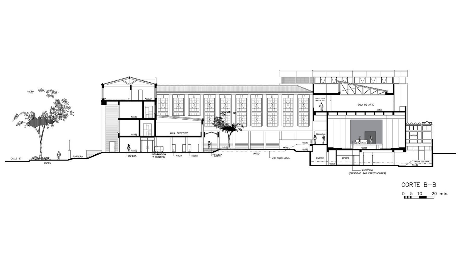
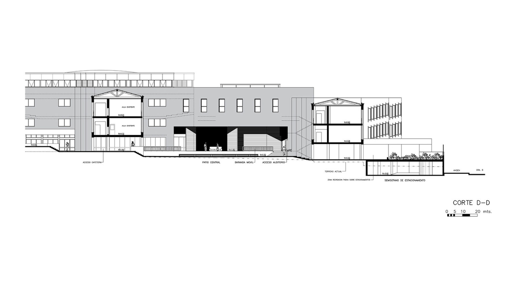
El Liceo Francés Louis Pasteur ocupa, desde 1948, un predio de 1.5 hectáreas en el tradicional barrio residencial de la Cabrera, al nororiente de Bogotá. Pese a que el colegio cuenta hoy con 2000 estudiantes el colegio resolvió, en base al Plan de Ordenamiento de 1989, permanecer en su sede histórica.
Pieza fundamental del plan de ordenamiento de 1989, que evitó el éxodo del Liceo hacia el norte, como otros colegios, este edificio demuestra cómo ciertas soluciones contribuyen, sin densificación, al aprovechamiento eficiente de terrenos escasos y a la armonía entre usos residencia les e instituc ionales.





















