Ficha Técnica y Memoria del Proyecto
Jefe de diseño: Daniel Bermúdez Samper
Equipo de diseño: Evelyn Delgado, John Oscar Pinzón, Adolfo Sastre, Camilo Villegas, Ramón Bermúdez
Diseños Técnicos: CCM – Contratistas Civiles y Mecánicos, S.A. – Pons Arquitectos
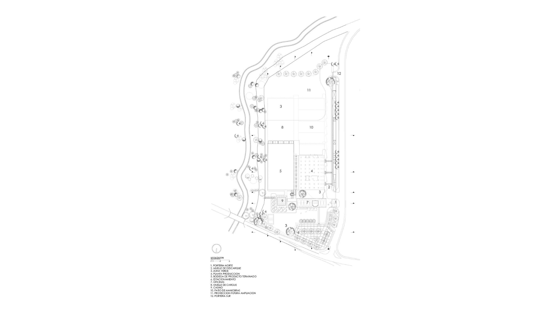
Quala S.A se encuentra ubicada a pocos kilómetros de Santo Domingo. El proyecto contempla la creación de plantas de producción, bodegas de almacenamiento, laboratorios, zonas de servicios y oficinas en 24.900 mt² y una intervención paisajística para el lote de 6.5 hectáreas.
El conjunto es una respuesta arquitectónica a los procesos de producción, prestando especial atención al bienestar de los empleados. El proyecto comprende y optimiza el movimiento y estancia de personas desde su llegada a la fábrica hasta su punto específico de trabajo, así como la fabricación de cada producto y su posterior envío a las tiendas, ofreciendo las mejores condiciones de habitabilidad tanto para los empleados como para los productos.
Localizada en una región de clima cálido, la planta responde a diversas variables del lugar y de la actividad, como la cercanía del Arroyo Porquero, la ubicación respecto al sol y a los vientos, o las posibilidades de crecimiento a futuro. El estudio del lugar determina la distribución de los espacios y el emplazamiento del complejo sobre el costado norte del lote, dejando una gran zona libre de aislamiento contra la carretera. Por su cercanía con la vía, las oficinas y el casino son la cara visible a la ciudad, mientras que las bodegas, ubicadas en la parte posterior, aprovechan los vientos predominantes que llegan desde el este, para ventilar y renovar el aire constantemente, por medio de distintos elementos de manejo bioclimático, como termosifones y protectores solares.
La zona de servicios y soporte de las máquinas productoras se encuentra en un edificio independiente, evitando así la generación excesiva de calor y energía dentro de las bodegas. Si bien las cubiertas y las fachadas se comportan como elementos de protección climática hacia el exterior -en una región azotada regularmente por huracanes-, el adecuado manejo de elementos naturales conserva los interiores frescos.
Los edificios más importantes están hechos con concreto blanco, empleando dos sistemas constructivos. Mientras que las oficinas y el casino se construyeron de forma tradicional, con una estructura principal fundida en sitio sobre formaletas, las bodegas cuentan con un sistema constructivo de fácil ampliación y modificación conocido como “tilt-up”. Este sistema resulta de la fundición de grandes pantallas sobre el piso que, al ser erigidas, encajan unas con otras, conformando la estructura. Este sistema de construcción rápida permite la movilidad de paneles para modificaciones y empates con nuevos paneles, dejando abierta la posibilidad de ampliaciones, factor muy importante para la empresa.













