Ficha Técnica y Memoria del Proyecto
Jefe de diseño: Diego BermúdezÂ
Equipo de diseño: Santiago Izquierdo, Juan David Herrera, Andres Felipe Solano, Cristina Garcia Nadal, Carlos Santamaria
Canopea, Ciudad Botánica
Â
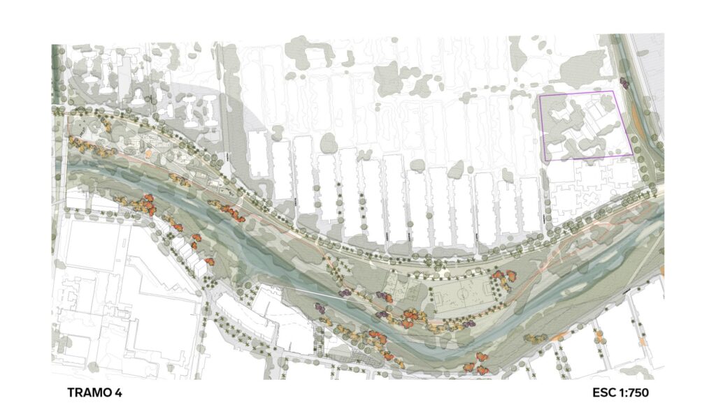
El Rio Cali nace en el Alto del Buey, en los Farallones de Cali en la ecorregión de los Bosques Montanos del Valle del Cauca y desemboca 50km más adelante, en el RÃo Cauca, en la ecorregión del bosque seco tropical del Valle del Cauca. Este rio era un corredor ecológico que conectaba dos ecorregiones, transformando este lugar en uno de los más biodiversos del planeta.
Â
La Canopea es el estrato mas alto del bosque. En este dosel se encuentra el 40% de la biodiversidad del bosque. Es indispensable repensar el rio y sus areas aferentes como una nueva ciudad botánica que sea capaz de recuperar la biodiversidad perdida, funcionando asà como un corredor ecologico que no solo conecta el Rio Cauca con los Farallones sino que además funciona como un Corredor articulador entre dos ecorregiones del Valle del Cauca.
Â
Canopea permite a sus visitantes reconocer esta recuperada biodiversidad en un recorrido que conectarÃa, en una fase posterior, el Jardin Botánico de Cali con la nueva Reserva Botánica Valle del Cauca llegando a tener un area de impacto superior a las 1500 HA. Reimaginamos Cali como una hÃbrido urbano – Reserva Natural Biodiversa.

























