Ficha Técnica y Memoria del Proyecto
Jefe de diseño: Daniel Bermúdez
Equipo de diseño: Juan Emilio Pérez, Jaime Romero, Henry González, José Fullop
Cálculo estructural: PCA, Luis Guillermo Aycardi
Tráfico Vertical: Rafael Beltrán
Diseño Eléctrico: Conelca, Insel S.A.
Ingeniería de Fachada: Lehner
Seguridad y Control, Cableado estructurado: AGR
Promotor: Construcorp S.A. / Consorcio Franco Inmobiliaria.
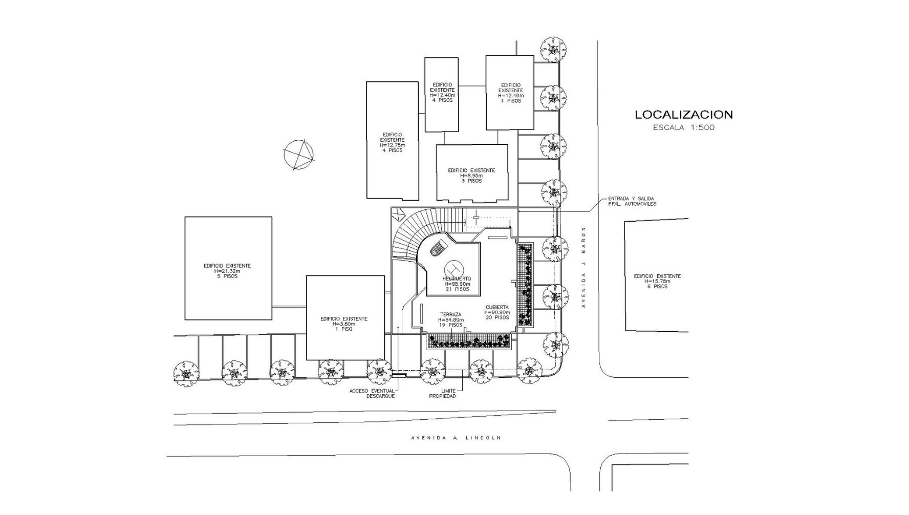
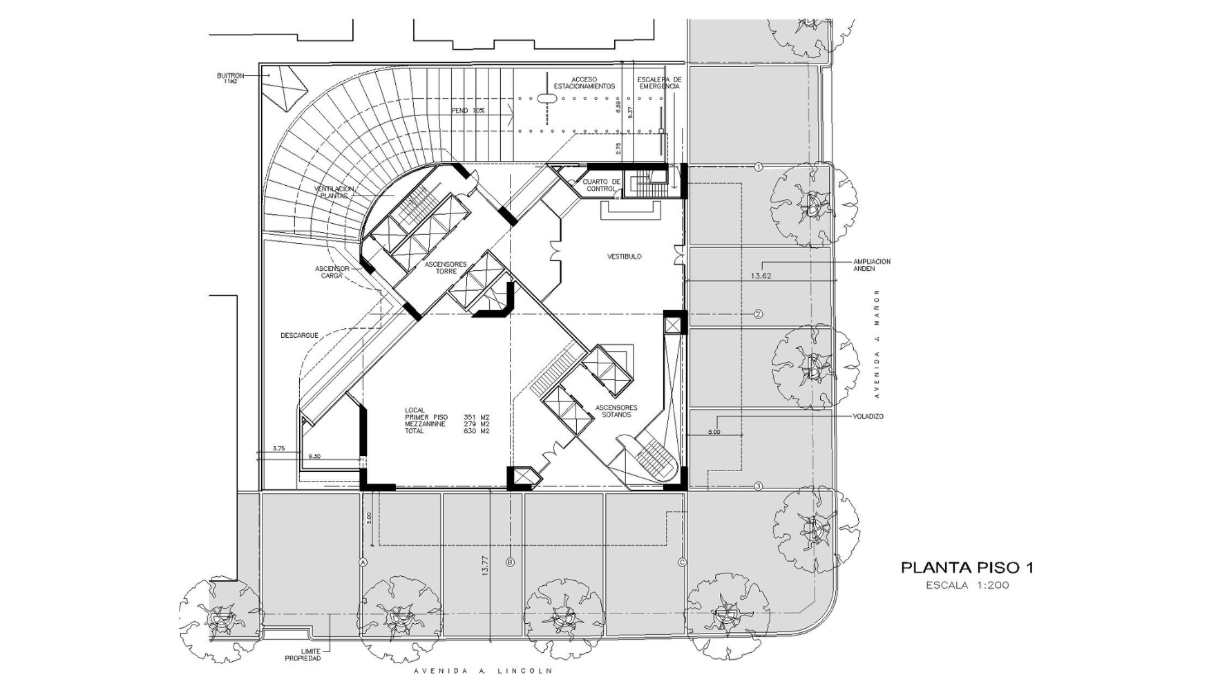
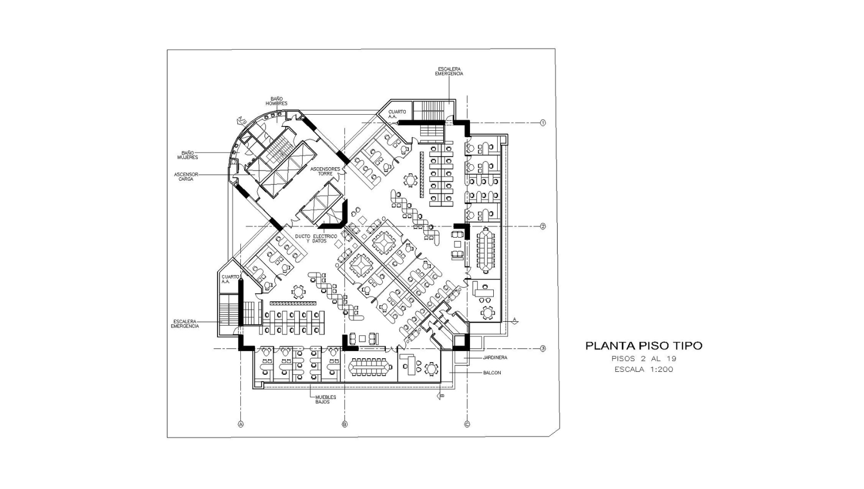
El edificio Platinum es una torre de oficinas que, por manejar el punto fijo y servicios complementarios en una esquina, ofrece grandes plantas libres en cada uno de sus pisos. Destaca el manejo del primer piso y del vestíbulo central con un tratamiento diferencial en alturas y acabados, así como la proyección en una de sus esquinas del punto fijo, claramente discernible en su volumetría y organización. La exploración estructural y distributiva guarda relación con el proyecto para el Auditorio y Biblioteca de la Universidad Jorge Tadeo Lozano, alcanzando resultados programáticos y espaciales diferentes. Desde el exterior, el manejo sobrio de superficies lisas y homogéneas en base a franjas de aluminio y vidrio contrasta con el tratamiento escultórico del volumen en sus esquinas. Los grados de apertura atienden igualmente a la asolación.













