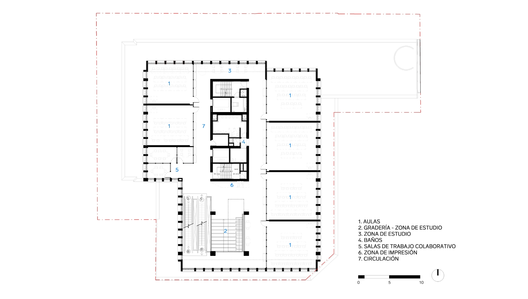
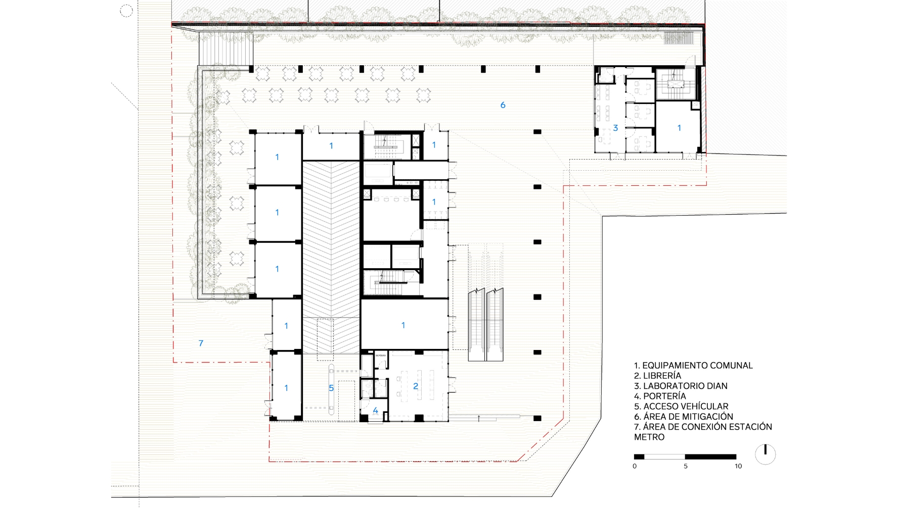
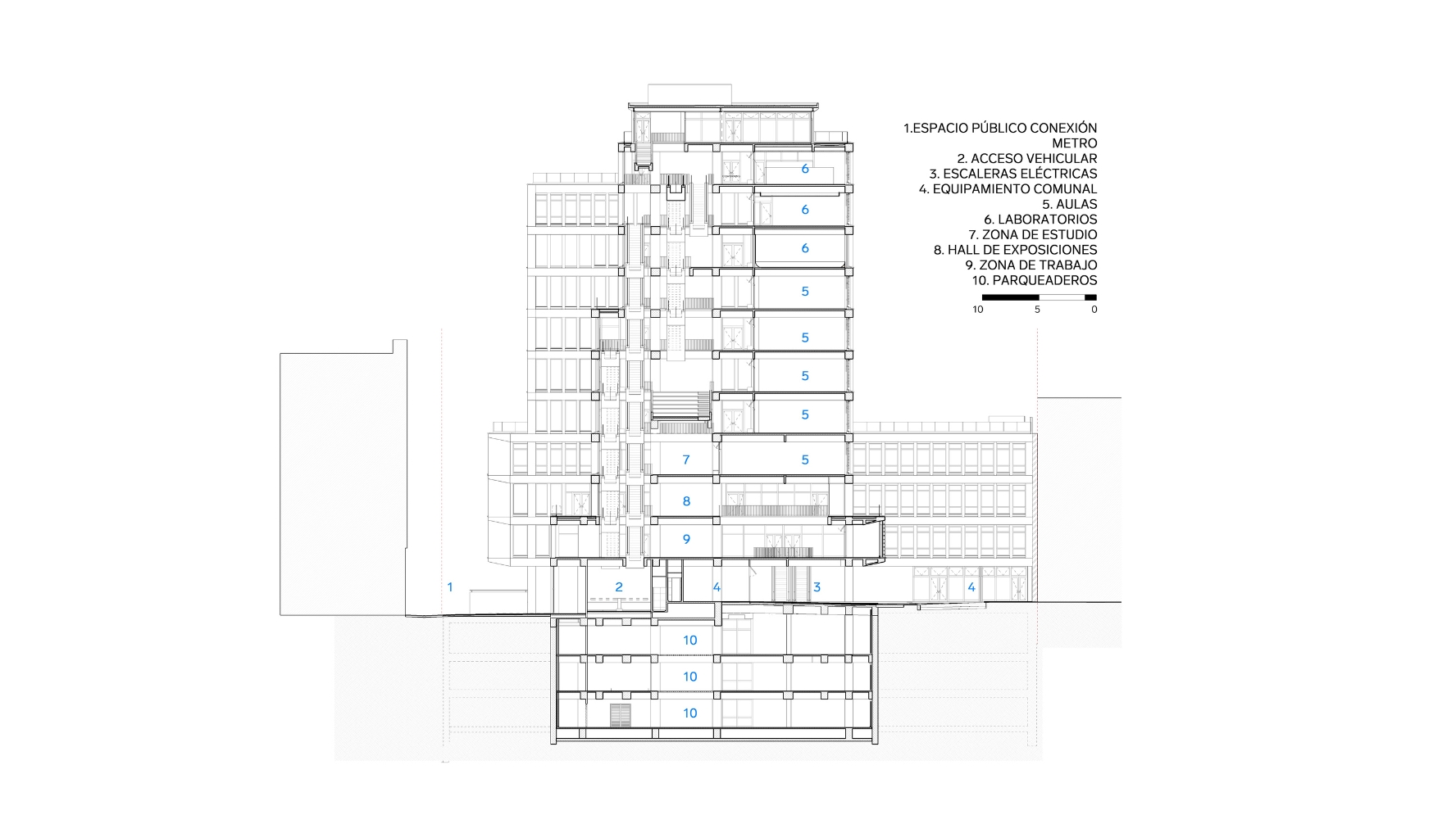
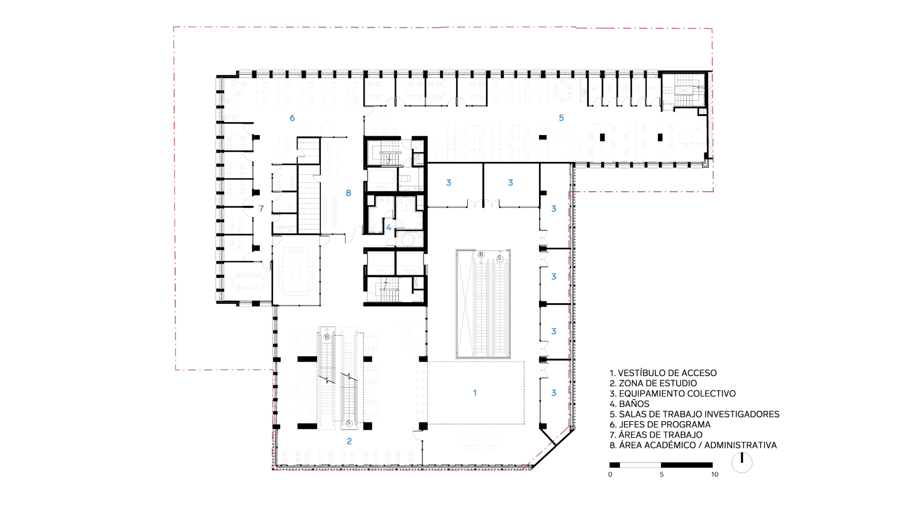
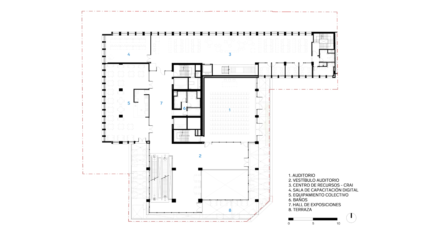
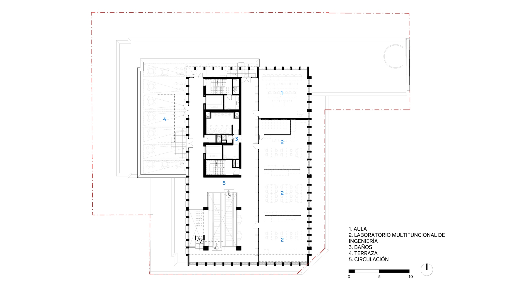
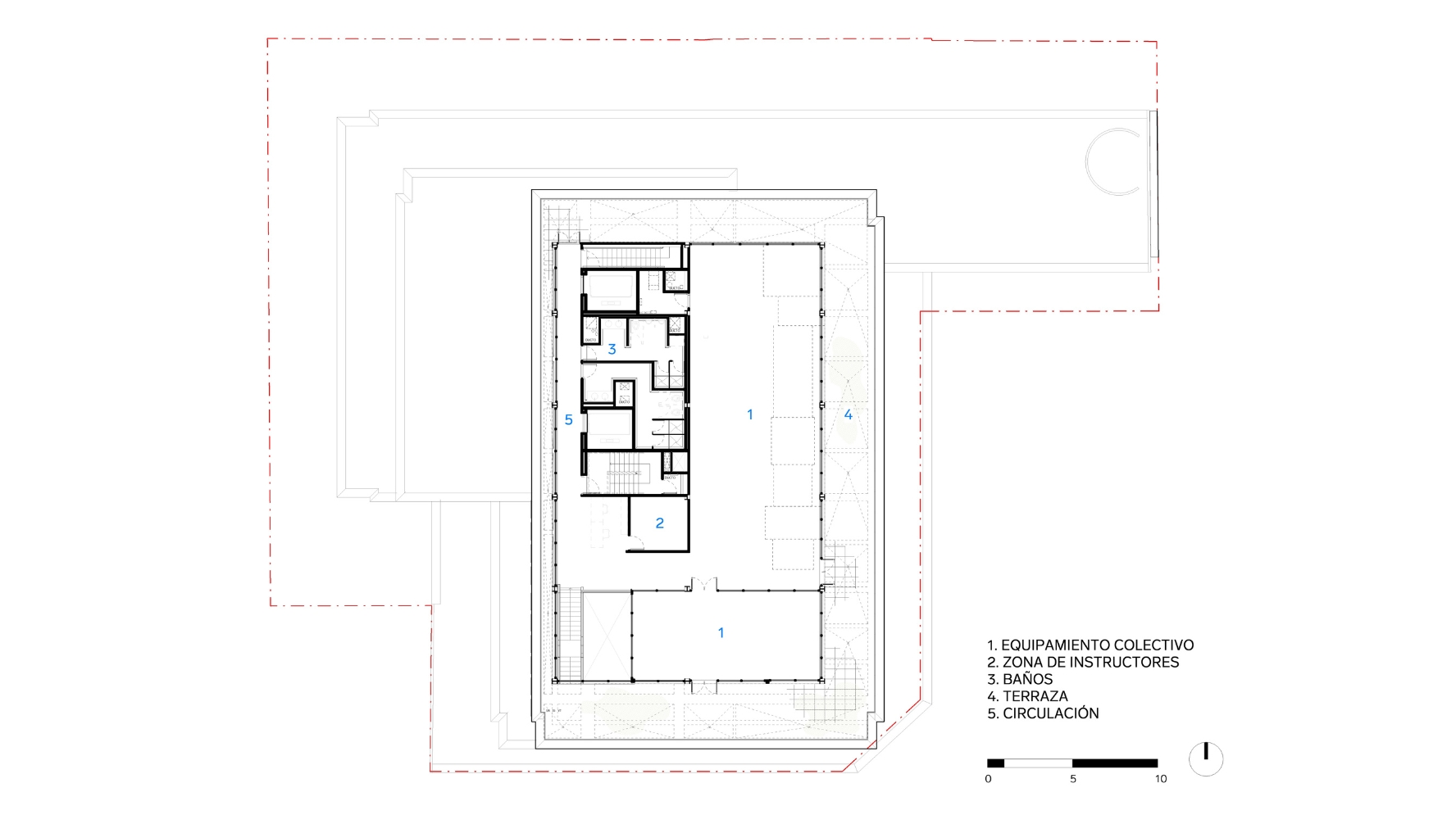
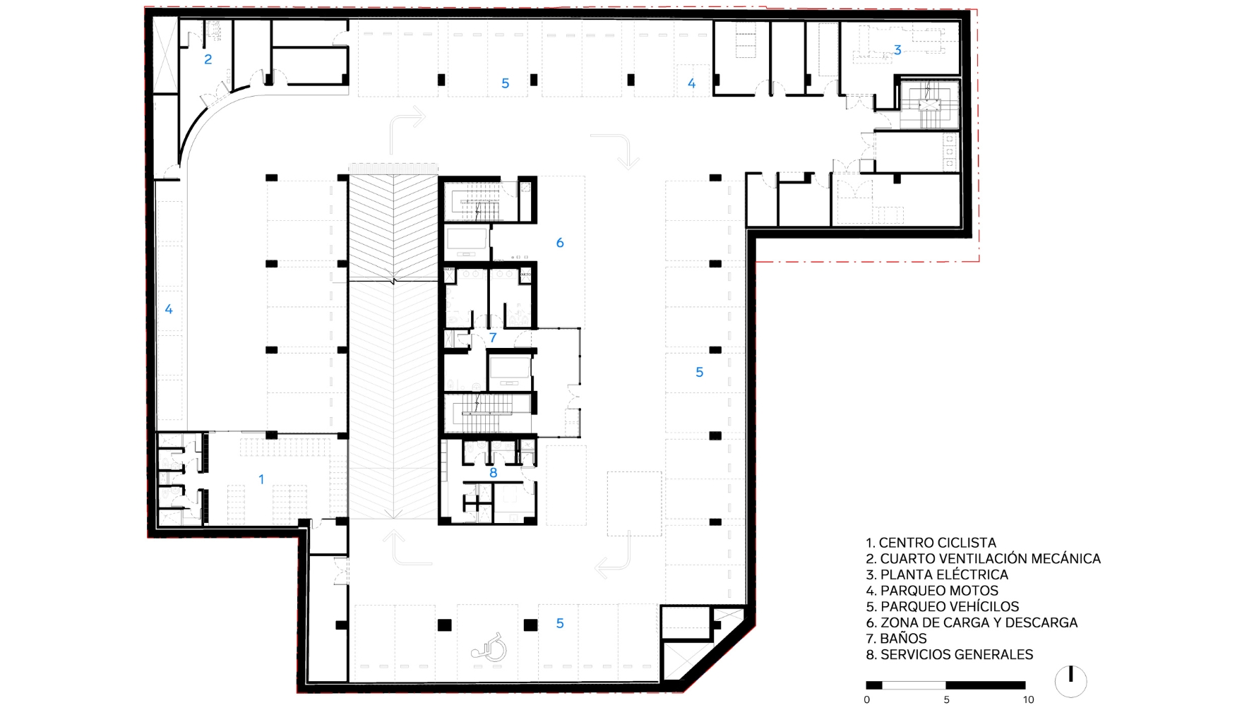
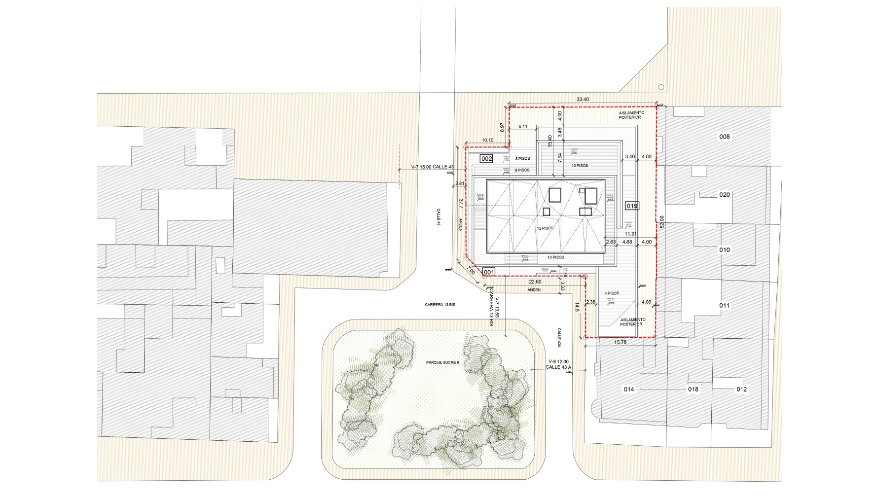
Universidad Cooperativa de Colombia – Edificio de aulas, laboratorios y bienestarBogotá, 2019-Actualidad| En Construcción 15.767 m² | Diseño Arquitectónico, Paisajístico. Ficha Técnica y Memoria del Proyecto – –